Представяме Ви новострояща се жилищна сграда, която се намира в едно от най комуникативните места в София. Централното, но същевременно, тихо и спокойно местоположение на сградата е основен приоритет за собствениците. Предвидена е система за контрол на достъпа и видеонаблюдение.
Жилищната сграда включва 15 апартамента във вход 'А' и 34 апартамента във вход 'Б'.
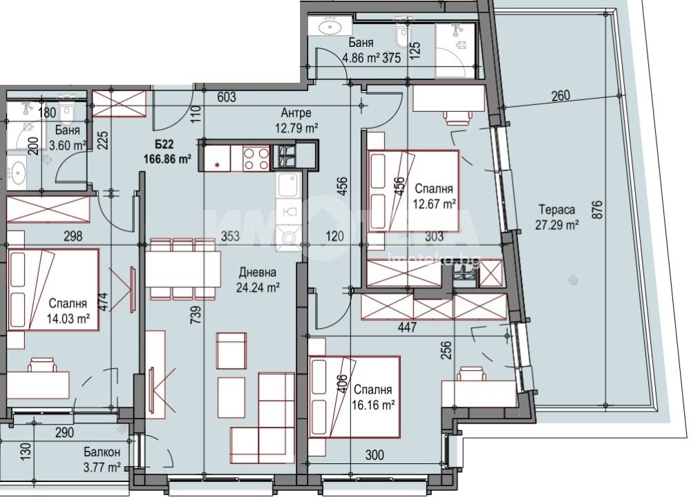
Многостаен апартамент разположен на шести етаж със следното функционално разпределение: Г-образен коридор, всекидневна с кухненски бокс, три спални, две бани с тоалетни, склад, балкон и тераса с превъзходна панорамна гледка.
Сградата се намира на пешеходно разстояние от:
- метростанция Хаджи Димитър ( 3 мин.); метростанция Театрална (13 мин); 143 ОУ (5 мин); детски градини Дъга и Слънце (5 мин.); парк Заимов (13 мин.); BILLA Черковна и BILLA В.Вазов (3 мин.).
Общите части на сградата ще бъдат луксозно изпълнени и оборудвани с гранит, дървена ламперия и висок клас хидравличен асансьор. Апартаментите са проектирани по европейски стандарти, с по-добър жилищен обем, предоставяйки усещане за простор и слънчева светлина. Предвидена е шумоизолация, поставяне на блиндирана входна врата на всеки апартамент, прозорците ще бъдат оборудвани с шесткамерна дограма с трислоен стъклопакет и К-стъкло и разбира се шумо- и топлоизолация.
- тухли Wienerberger
- фасадни стени с полимерна мазилка и естествен камък
- топлоизолация на стените с 10 см EPS изолация и на покривите с XPS 10 см.
- двойна хидроизолация на покрива и терасите
- отопление на ТЕЦ
Район с добре изградена инфраструктура, апартаментите в сградата са изключително подходящи както за лично ползване, така и за отдаване под наем.
... Обади се сега и цитирай този код 580404
Виж всички обяви в imoteka.bazar.bg или тук







