Сити Пропъртис ООД Ви представя многостаен апартамент 12Б1 в комплекс Aurora Residence проектиран с модерна визия и стил в съчетание с висококачествени материали и технологии, отговарящи на най - съвременните изисквания.
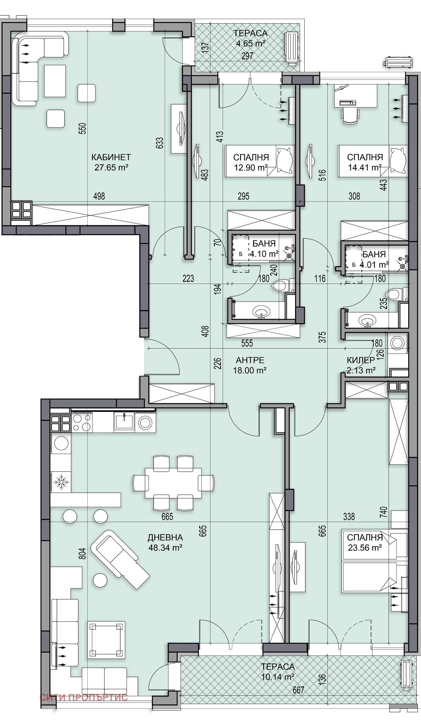
Апартаментът е на дванадесети жилищен етаж, част от секция Б и предлага функционална обща квадратура от 227,89 кв.м. Състои се от спалня (12,90 кв.м.), спалня (14,41 кв.м.), спалня (23,56 кв.м.), кабинет (27,65 кв.м.), хол с кухня (48,34 кв.м.), баня с тоалетна (4,10 кв. м.), баня с тоалетна (4,01 кв.м.), антре (18,00 кв.м.), килер (2,13 кв.м.) тераса (4,65 кв.м.) и тераса (10,14 кв.м.).
Локацията осигурява бърз и лесен достъп до центъра на града. Комплексът е разположен в близост до големи пътни артерии, търговски обекти, училища и детски градини.
На партер, се разполага иновативно общо пространство, за ползване от всички собственици Aurora Lounge . Естетика и уют разгърнати на едно място в обособени зони с мека мебел, приканващи за почивка и срещи с приятели на чаша чай или кафе. В допълнение е и удобен работен кът с достъп до интернет и възможност за работа в непринудена обстановка.
Характерно за строителството на жилищните секции, са малкото на брой апартаменти по 2, 4 или 5 на етаж и светла-височина на таваните - 2,70 м.
На разположение са удобства, като подземен и надземен паркинг, красиво озеленени площи, обособен детски кът, зони за отдих, подземно и надземно паркиране.
Цялостната визия на комплекса и останалите апартаменти, може да разгледате на: Aurora residence - Сити Пропъртис (city-bg.com)
За допълнителна информация, се свържете с нас на: тел +359877277956, +359877277935 или имейл: [email protected]
Виж всички обяви в aurora.bazar.bg или тук







