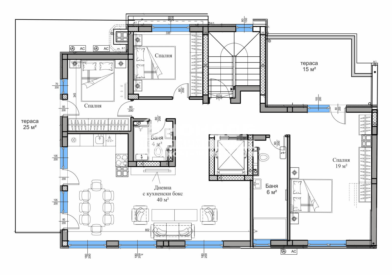
Оферта 60568: Предлагаме на Вашето внимание многостаен апартамент, самостоятелен на етаж с възможност за Двоен Партерен Гараж в малка пет етажна бутикова сграда с осем апартамента, разположена в района между Новотела и Моста на Герджика. Жилището се състои от просторна дневна с трапезария и кухненски бокс - 42 м2 с излаз на панорамна тераса, три спални-две детски и една голяма родителска 17 м2, две бани с тоалетна, входно антре и две тераси. Към апартамента има прилежащо избено помещение, включено в цената. Имота е завършен до ключ с поставени подови настилки, стени - мазилка, поставена кухня и завършени бани с цялата санитария. Перфектното местоположение характеризира района, като един от най-предпочитаните за покупка на основни жилища. Строителната компания е с доказан имидж в строителството. Жилищната сграда съчетава качествата на съвременната архитектура и новите технологии. Кондор имоти предлага възможност за банково финансиране от водещи банки на преференциални условия.
ВИЖТЕ ОЩЕ ИЗГОДНИ ОФЕРТИ НА https://www.kondorimoti.com/ С ЕЖЕДНЕВНА АКТУАЛИЗАЦИЯ!







