Оферта 62194: СПЕЦИАЛНА ОФЕРТА!!! НОВА ГОТОВА СГРАДА!!! ГАЗИФИКАЦИЯ!!! ВИДЕО НАБЛЮДЕНИЕ!!! ДЕТСКА ПЛОЩАДКА!!! НИСЪК ПРОЦЕНТ ОБЩИ ЧАСТИ!!!
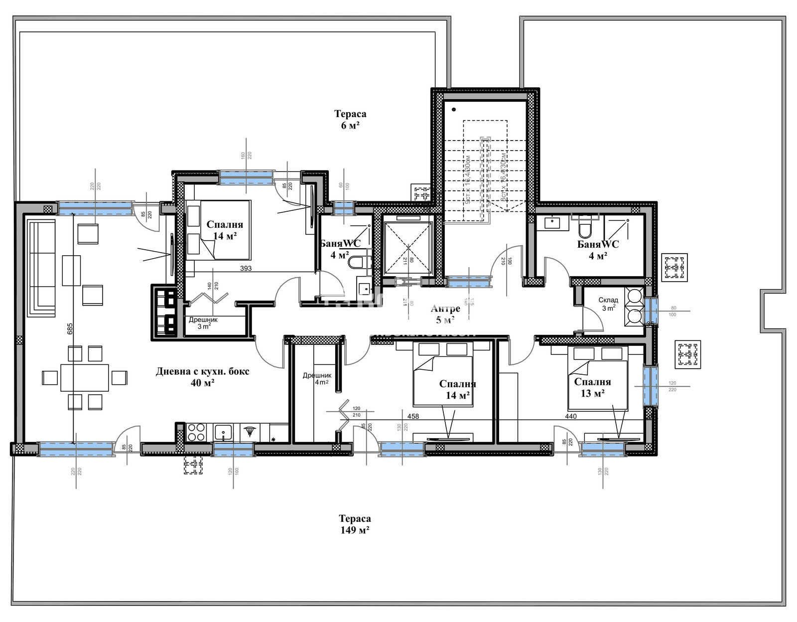
Разпределения - Предлагаме на Вашето внимание пентхаус с три изложения ЮГ/СЕВЕР/ИЗТОК, самостоятелен на етажа с големи панорамни тераси с достъп от всички стаи, състои от светла дневна 40кв.м. с трапезария и кухненски бокс, три самостоятелни спални: родителска 14кв.м. със собствена баня и дрешник, детска 13кв.м., гостна 14кв.м. с дрешник, втора голяма баня 6кв.м. с тоалетна, склад/перално и входно антре с място за гардероб. Към апартамента има асансьор със собствен достъп до него. Имате възможността да си закупите жилище с една, две или три спални!
Материали - Проектирана с изключително нисък процент общи части, жилищната сграда е изграждена в унисон с най-високите европейски стандарти за качество. Използваните материали са съобразени с най-новите тенденции в строителството - модерна външна облицовка, покривна и фасадна изолация, PVC пет камерна дограма, луксозни общи части и др., допринасят допълнително за усещането за лукс и комфорт на обитателите.
За удобството на своите собственици, сградата разполага с подземен паркинг с Гаражи и Паркоместа, както и Паркоместа ситуирани в двора!
Локация - Районът на булевард Южен, близостта на големи супермаркети, училища и детски градини, допълнително внася комфорт в ежедневието на хората.
Начин на плащане - Кондор имоти предлага възможност за банково финансиране от водещи банки на преференциални условия.
ВИЖТЕ ОЩЕ ИЗГОДНИ ОФЕРТИ НА https://www.kondorimoti.com/ С ЕЖЕДНЕВНА АКТУАЛИЗАЦИЯ!







