ЮГ/ ЗАПАД /СЕВЕР
Ситуиран в Южната част на София, близо до две от основните ключови артерии в града - булевард 'Черни връх' и Околовръстен път. Локацията е изключително комуникативна с осигурен бърз достъп, както до административната част на града, така и до редица културни, спортни и обществени зони.
* 150 м - до бъдеща метростанция
* 10мин - с автомобил от център
* 5мин - от МОЛ Парадайс
* 15мин - от лифт Витоша
* 2мин - от Фантастико и Лидъл
ЧАСТЕН ПАРК
* външен фитнес
* детски кът
* кът за домашни любимци
* затворена паркова среда с места за отдих и разговори, паркови алеи с богата растителност и екстериорно осветление, модерна детска площадка, мултифункционален открит фитнес с изключително разнообразие от упражнения и възможност за натоварване на всички мускулни групи, зона за домашни любимци и всичко това в безопасна среда без автомобили
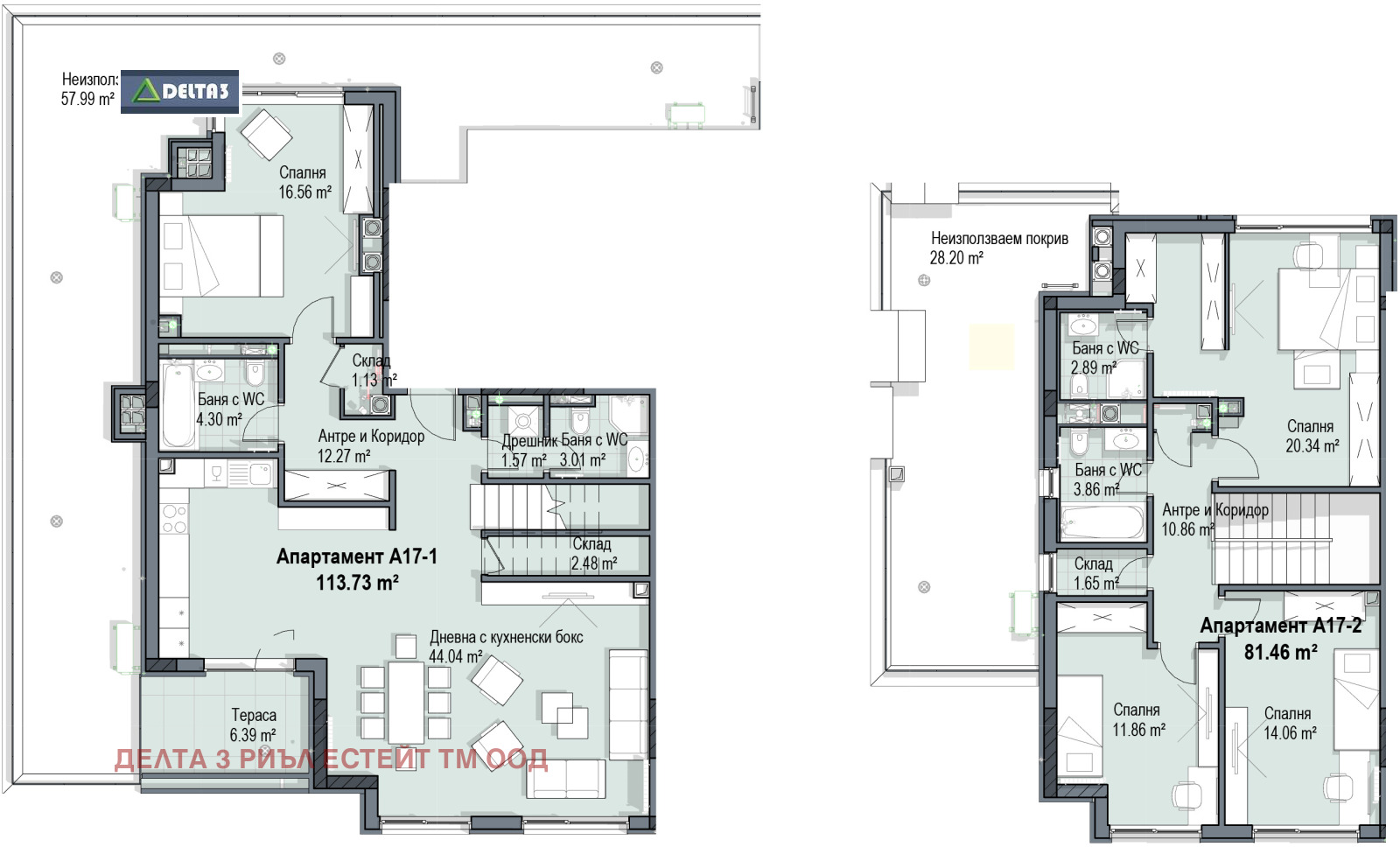
АПАРТАМЕНТИ
всички апартаменти са проектирани да осигуряват максимална естествена светлина и са със собствен индивидуален характер за пълноценен начин на живот. Може да изберете апартамент с различен изглед, разположение и функция. От жилища със собствени партерни тераси и гледка към парка на комплекса до пентхауси с неповторима панорама към София, Витоша планина и Копитото
Площ на ТРИСТАЙНИ
от 97 - 143 кв.м
* етап - пред акт 15
* срок на завършване - 3.2025г.
ПРОДАЖБИ ДИРЕКТНО ОТ ИНВЕСТИТОР С ВЪЗМОЖНОСТ ОТ ИЗБОР НА ЕТАЖ, РАЗПОЛОЖЕНИЕ И ИЗЛОЖЕНИЕ!
ЗА ОГЛЕДИ И ПОВЕЧЕ ИНФОРМАЦИЯ - Айла Адамова, тел: + 359 877 22 39 77. Ако съм заета и не Ви отговоря, моля, позвънете пак или изпратете запитване по e-mail: [email protected].
Виж всички обяви в delta3estate.bazar.bg или тук







