ДИРЕКТНО ОТ ИНВЕСТИТОР! Най-добра цена за района! Сграда Люлин КОМФОРТ ' вече е с АКТ 14 и се придвижва към следващите фази на строителството с бързи темпове. Въвеждане в експлоатация-2027г.
Първата по рода си сграда в Люлин, с елегантна архитектура, спиращи дъха гледки, специално проектирана с акцент към комфорта и широките светли пространства в един уютен и модерен нов дом.
Сграда Комфорт е отличен избор за спокойна, семейна среда за динамично живеещия в столицата човек. Близостта до различни търговски центрове, магазини, училища и детски градини, както и отличните транспортни връзки, елиминират неудобствата на скоростния столичен живот.
- в близост до метростанция
- местоположение без аналог за кв. Люлин
- отлично проектирани апартаменти
- избор на тристайни и четиристайни жилища с южно изложение
- подземен паркинг на 3 нива
Сградата се състои от три входа, три подземни нива с гаражи и паркоместа, два магазина на партерен етаж. Апартаментите в сградата са просторни и светли, с правилни форми на помещенията, южно или източно изложение, прекрасни тераси.
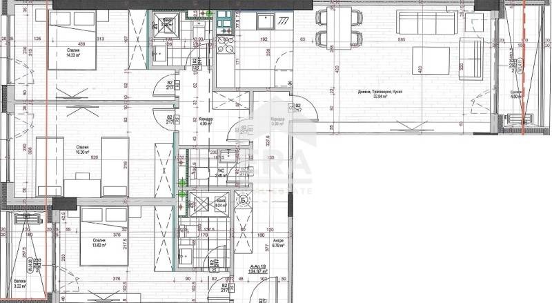
Обявеният за продажба тристаен апартамент (А 43) е с площ от 164 кв.м и има следното разпределение: входно антре, всекидневна с кухненски бокс, балкон, три спални, две бани с тоалетни. Изложение: изток-запад.
ЕРА България е независим кредитен посредник към БНБ, с номер BCI000024 и предоставя безплатна консултация и съдействие при финансиране на избрания от Вас имот.
Оферта 3304642







