PS Property предлага за продажба просторен четиристаен апартамент в един от най-предпочитаните райони Аязмото!
Имотът е разположен в модерен затворен комплекс, в непосредствена близост до парк Аязмото, МОЛ Галерия, езерото Загора и удобни спирки на градски транспорт локация, съчетаваща спокойствие, зеленина и отлична комуникация.
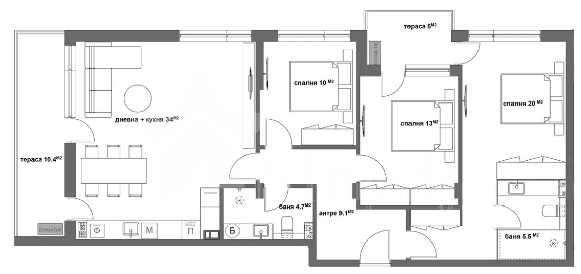
Жилището се отличава с функционално разпределение и просторни помещения: входно антре, светла всекидневна с площ от 34 кв.м., родителска спалня (20 кв.м.) със собствен санитарен възел, още две спални (10 кв.м. и 13 кв.м.), баня с тоалетна и три тераси, които осигуряват допълнителен комфорт и усещане за пространство.
Апартаментът е разположен на среден етаж в затворен комплекс с контролиран достъп, модерна архитектура и луксозно изпълнени общи части. Сградата е дело на доказан строител, гарантиращ високо качество и дългосрочна стойност на инвестицията. Акт 16- 2026 год.
Обща площ: 153,32 кв.м.
Изложение: северозапад
PS Property предлага БЕЗПЛАТНА консултация и съдействие при ипотечен или потребителски кредит, като услугата не е обвързана с покупка на имот.







