ДИРЕКТНО ОТ ИНВЕСТИТОРА! БЕЗ КОМИСИОННА!
Краси Кънстръкшън ЕООД предлага апартамент, в новострояща се атрактивна и модерна жилищна сграда на ул. Димитър Буйнозов, кв.Картала. Комплексът е с конторлиран достъп с частен паркинг,разположен на комуникативно място в близост до парк, магазини, детска градина и градски транспорт.
Разположението на жилищен комплекс предлага всичко, което поискате за уюта, сигурността и свободното време на цялото Ви семейство. Едно чудесно място за живеене с всички необходими удобства.
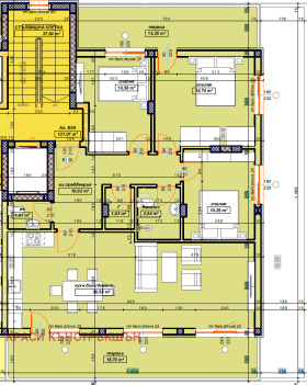
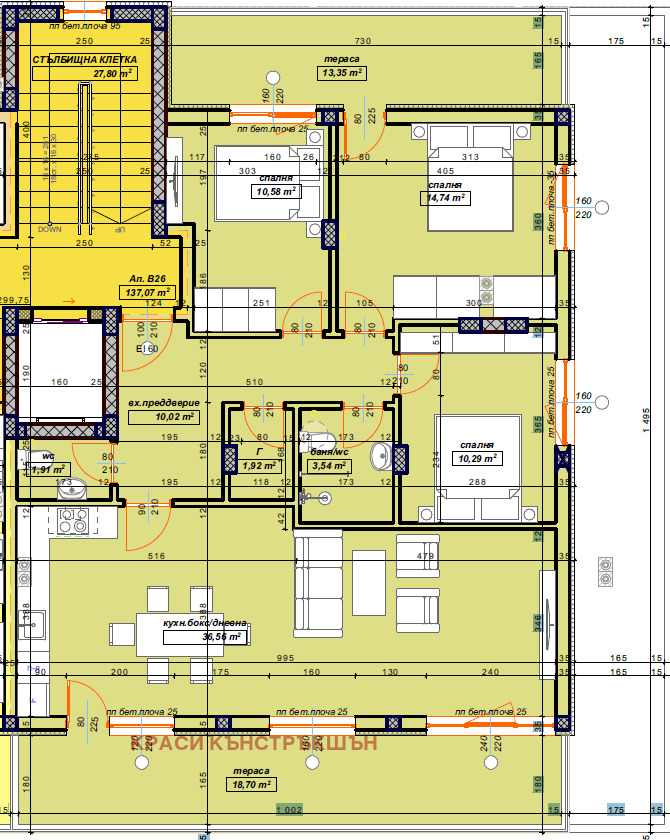
Апартаментът е с комфортно и функционално разпределение на шести жилищен етаж с изложение север - изток -юг. Чистата жилищна площ е 137,07м2 разпределена между дневна с кухненски бокс, три спални, коридор,тоалетна, баня с тоалетна, складово помещение и тераса.
Жилището ще бъде издадено с:
- дограма с немски профил SCHUCO 82 мм, троен стъклопакет- 4 мм четири сезона, 4 мм бяло, и 4мм нискоемисийно (К) стъкло;
- входна блиндирана врата с минерална вата;
- вътрешни интериорни врати;
- подови настилки на замазка;
- стени на гипсова мазилка
- висококачествена външната изолация Baumit с много добри топлоизолационни свойства,която ще осигури ефективно отопление през зимните месеци и приятна хладина през лятото.
- Фасадната част, покрита с Baumit e водоотблъскваща и силно паропропусклива
- тухли Wienerberger
- домофонна инсталация
- асансьорна уредба от водещия световен бранд KONE. Избраният модел асансьор е с повишена енергийна ефективност и безшумен.
Жилищната сграда ще бъде изцяло завършена с удостоверение за въвеждане в експлоатация май 2026 година.
Използваните технологии и материали са от най-високо качество от доказан строител







