Translations in other languages:
All real estate ads published on imot.bg have been translated into English and published on the partner site
Получихте нова обява по филтър





Промяна на цена на наблюдавана обява


стара цена
нова цена
imot.bg – обяви за продажби и наеми на имоти
Сайт за имоти №1
Translations in other languages:
All real estate ads published on imot.bg have been translated into English and published on the partner site
ДОБАВИ ОБЯВА Редакция на обява
Начало Добави обява Търсене Агенции Новини Кредити Вход / Регистрация
Продава 4-СТАЕН
град София, Витоша
ул. Проф. Васил Стоин
400 000 €
782 332.00 лв.

(2 500 €, 4 889.58 лв./m2)
Цената е без ДДС
История на цената
Публикувана в 10:17 на 9 април, 2026 год.
Обявата е посетена 2231 пъти.
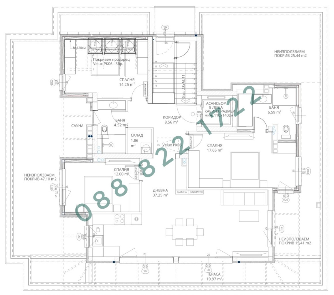
Площ:
160 m2
Етаж:
6-ти от 6
Газ:
ДА
ТEЦ:
НЕ
Строителство:
Тухла, Ще бъде въведен в експлоатация 2026 г.

Описание на имота:


Директно от инвеститор, без комисионна!
ROYALSTROY AIМ представя изключителен, светъл и просторен четиристаен апартамент с 360 градусови гледки.

Основни предимства на апарамента:
*Разположен самостоятелно на последен етаж;
*Подово отопление;
*Естествена светлина във всяко едно помещение, включително бани и коридори;
*Френски прозорци от висок клас алуминиева дограма.
*Три спални, една от които Master bedroom със собствена баня.
*Широка всекидневна с невероятна гледка към Витоша планина югоизток-юг-югозапад
*Шумоизолационни системи на водещи производители
*Възможност за закупуване на гараж с топла връзка към асансьора на сградата и /или външно паркомясто.
*Големи тераси с възможност за оформяне на различни кътове - барбекю / лятна кухня / външна трапезария.
*Възможност за изграждане на сауна с панорамна гледка към планината.

Ако харесвате:
- Големи отстояния от съседи, четирипосочни изложения и много светлина;
- Малък брои апартамента /само 14 в цялата сграда/;
- Просторни апартаменти с правилни форми и отлична функционалност;
- Качествено строителство, добра шумо и топлоизолация;
- Наземни сухи и топли гаражи с топла връзка към асансьора на сградата;
- Сгради със стилни визия, общи части и асансьор, не пропускайте да заявите своя оглед!

Прочетете повече -->
В непосредствена близост до бъдещ парк, и същевременно на много комуникативно място.
Избрахме тази локация заради добрите отстояния от съседни сгради, бъдещия парк буквално залепен за сградата, бързата комуникативна връзка с центъра на София и Околовръстен път и най-вече заради близостта до планината и невероятните гледки, които тя ни разкрива.
Благодарение на това, че сградата се състои само от 14 апартамента, ще Ви осигурим необходимия комфорт, тишина и спокойствие, в иначе просторните апартаменти с правилни форми, изобилие от светлина и отлична функционалност.

Жилището предлага функционално и комфортно разпределение. С площ от 140 кв.м. / чиста площ без общи части /, като всички помещения са проектирани просторни, с много добра шумуизолация и чудесно предразполагат създаването на баланс между стил и удобство. Естествена светлина присъства във всяко едно помещение, в това число и в коридора, като дава възможмост да се проветряват добре всички помещения и най-вече баните.
Степента на завършеност ще бъде с включено подово отопление в целия апартамент, максимална топлоизолация* и висок клас алуминиева дограма със стъклопакет с обща ширина 46мм, комбинация от КА стъкло 6мм, бяло 5мм и МФ 6мм, на по-големите стъклопакети. Предвидени са блиндирани пожароустойчиви входни врати, облечени с МДФ плоскости, а сградата е изцяло съобразена с изискванията за достъпна среда. Вариантите за отоплението ще бъдат посредством климатици и или на газ, като всеки апартамент е с изградена климатична и газова инсталация, без монтиран газов котел и климатици. Енергийната ефективност на сградата се осигурява от качествена топлоизолация от EPS с дебелина 12+см, зидария с енергоефективни керамични блокове с вертикални канали, висококачествена алуминиева дограма с троен стъклопакет на всички прозорци и врати.
Локацията позволява бърз достъп, както към централната градска част, посредством големи пътни артерии, като булевардите: Симеоновско шосе; Тодор Каблешков; Г.М. Димитров; Никола Й. Въпцаров; Черни Връх, така и в посока Околовръстен път. Освен множество от учебни заведения (детски ясли и градини, Британско училище, частно училище Петър Берон и многоброините университети в Студентски град), в близост можете да откриете: автобусна спирка за довеждащ транспорт свързващ кв. Витоша, Студентски град и Метро станция Витоша, буквално на метри от сградата; автобусна спирка с над 7 автобуса на бул. Симеоновско шосе (220м или 3мин пеша); хранителни магазини; спортни комплекси; зоологическа градина. Метростанция Витоша в Парадайс Мол е на 2,3км (около 7 мин с въпросния довеждащ траспорт), на сходно разстояние е и станция Г.М. Димитров . тел.: 0888221722
Особености
Тухла
Асансьор
С гараж
С паркинг
Контрол на достъпа
За контакт:
0888221722
Инвеститор:
РОЯЛСТРОЙ АИМ ЕООД
0888221722
В imot.bg от 2026 г.
royalstroyaim.imot.bg
Адрес:
област София, гр. София, ул.82ра N4
http://www.royalstroyaig.com
ИЗПРАТИ ЗАПИТВАНЕ
ИЗПРАТИ ЗАПИТВАНЕТО

Продава 4-СТАЕН
град София, Витоша
ул. Проф. Васил Стоин
Обява: 1d177571904374107

400 000 €
782 332.00 лв.
История на цената
(2 500 €, 4 889.58 лв./m2)

Цената е без ДДС
ЗАПАЗИ ОБЯВАТА

Местоположение: град София, Витоша, ул. Проф. Васил Стоин

Виж още имоти от София или още Четиристайни Апартаменти в София
Допълнителни данни за имотите в района и сравнение с други райони

Покажи

Период

и 4 месеца

* Средните цени са определени чрез медианна стойност
Обяви за имоти Продажби град София Витоша Четиристайни апартаменти
Въпроси и предложения към imot.bg
КОНТАКТИ | SMS КОДОВЕ | ПОМОЩ | ОБЩИ УСЛОВИЯ | РЕКЛАМА | ЗАЩИТА НА ЛИЧНИТЕ ДАННИ | КАРТА НА САЙТА |
Резон Медия | Автомобили | Работа | Новини | Обяви 2002-2026 ® Copyright imot.bg
© imot.bg ползва и препоръчва хостинг услугите на Bulinfo.net
Следвайте ни в: