Гайдарец предлага за продажба двустайни, тристайни и многостайни апартаменти в новострояща се сграда, находяща се в с. Гара Елин Пелин.
Сградата ще е едно малко бижу с модерна визия, изпълнено с висококачествени материали и заобиколено с богато озeленяване.
Предстоящ АКТ 16.
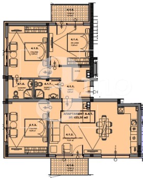
Предложеният Апартамент 4.1 е четиристаен и е със следното разпределение: дневна с кухненски бокс с излаз на тераса, спалня с излаз на тераса, втора спалня, две санитарни помещения и входно антре.
Общата площ на имота е 138,77 кв.м, а застроената е 123,30 кв.м.
Изложението му е юг и запад.
Отоплението е предвидено на газ.
Имотите ще бъдат завършени до гипсова шпакловка и замазка с монтирани блиндирани входни врати с тристранно заключване.
Дограмата ще е петкамерна РVC, немски профил с троен стъклопакет /4-сезона-кафява/.
Сградата ще разполага с асансьор, контролиран достъп и аудио-домофонна система.
На партерното ниво на сградата ще бъдат изградени гаражи, като всеки гараж ще разполага със санитарно помещение. Гаражите се закупуват допълнително.
Уникално местоположение, осигуряващо комбинация в това да сте в близост до Столицата и това да живеете сред природата.
Проектът се финансира от банка ДСК.
Оферта 1881







