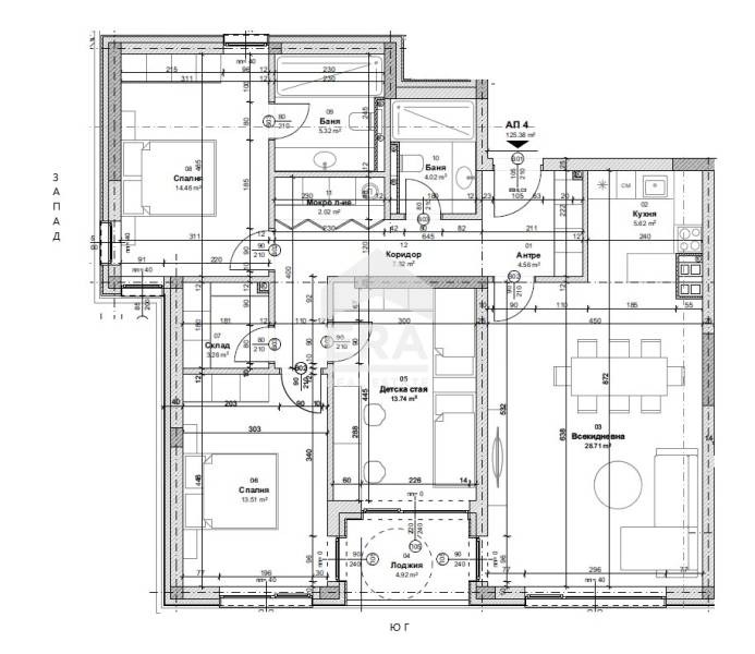
ЕРА Варна Тренд предлага за продажба четиристаен югозападен апартамент с морска панорама, в новострояща се сграда, в м-т Долна Трака, с бърз достъп до града по асфалтов път. Имотът е със застроена площ 125 кв.м (141 кв.м с общите части), разположен на втори етаж от общо 4 етажа. Състои се от входно антре (4,56 кв.м), просторна дневна с кухненски бокс (28,71 кв.м), три спални (13,74 кв.м, 13,51 кв.м и 14,46 кв.м), най-голямата със собствена баня с тоалетна (5,32 кв.м), лоджия (4,92 кв.м) към дневната и две от спалните, коридор (7,32 кв.м), втора баня с тоалетна (4,02 кв.м), склад (3,26 кв.м) и перално помещение (2,02 кв.м). Изложението е юг/запад, като ще се открива морска панорама, сред спокойствие и тишина.
Жилището се продава необзаведено. Ще бъде завършено до степен БДС, с поставена ПВЦ дограма. Налични са електричество, вода и канализация в имота.
Четиристайният апартамент се намира в четириетажна тухлена сграда, на начален етап на строителство. Очаква се да бъде въведена в експлоатация (Акт 16) през 2027 г. В сградата се предлагат също двустаен апартамент и тристайни мезонети. Има възможност за допълнително закупуване на открито паркомясто, на цена 10 000 евро.
Оферта 0222373







