Агенция АРГУС продава 4-стаен апартамент в новострояща се жилищната сграда, находяща се в най-перспективния и престижен райн на Младост 4, териториално срещу Бизнес парк София, заключен между бул. Александър Малинов , Околовръстен път и Американски колеж . Сградата ще има панорама към централната /южна/ и западна част на Витоша и към София. Тя е в непосредствена близост до спирките на автобуси 111, Х9 и Х10 и отстои на 815 м. от метростанция Бизнес Парк , 735 м. от Бизнес Парк - София, 782 м. от ИКЕА и на 983 м. от РИНГ МОЛ . В момента в този район активно се изгражда отлична улична инфраструктура. Сградата ще се състои от две подземни нива с общо РЗП 2264 кв.м и 9 надземни етажа с обща РЗП от 6292.36 квм.
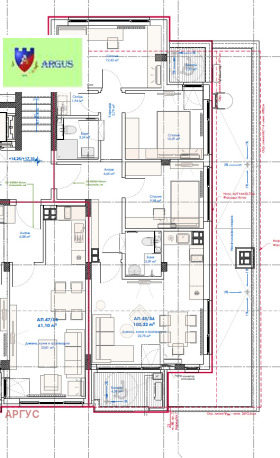
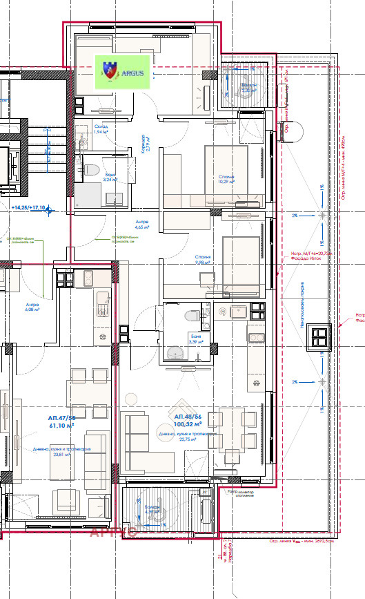
Апартаментът ще е разположен на етаж 7/9 с панорами на юг, изток и север, квадратура 123 кв.м., чиста ЗП 100.32 кв.м.
Сградата в момента е на етап изливане на подложен бетон на първо подземно ниво. А 16 въвеждане на сградата в експлоатация се очаква около ноември месец 2028 г. Сградата ще бъде захранена с газ, луксозни общи части, външни и вътрешни стени тухла Винебергер ; външни врати противовзломна, блиндирана СОЛИД ; външна дограма- алуминиева с прекъснат термомост, обков, троен стъклопакет, минимум 36 мм. и двуплоскостно отваряне във всяка стая; фасада цялостна топлоизолационна система на Баумит -Австрия с топлоизолация минимум 10 см. ЕРS еструдиран полистирол, изцяло завършена с минерална мазилка, финишно покритие с Еталбонд на кота 0/нула/, облицовка врачавски камък, гранит/гранитогрес/. Вертикална планировка и озеленяване по проек.
Офертата е за директни клиенти!
Младен Пейчев 0888 871 885; 0878 871 885







