БИЛДИНГ БОКС предлага за продажба Четиристаен апартамент в новострояща се сграда до парк Възраждане
-ЛОКАЦИЯ: Локацията позволява удобство на живущите, възможност за отдаване под наем, благодарение на близостта до главни пътни артерии и големи вериги хранителни магазини, учебни заведения, спирки на градски транспорт и други удобства. Сградата ще се намира на крачки от новоизградения парк 'Възраждане'.
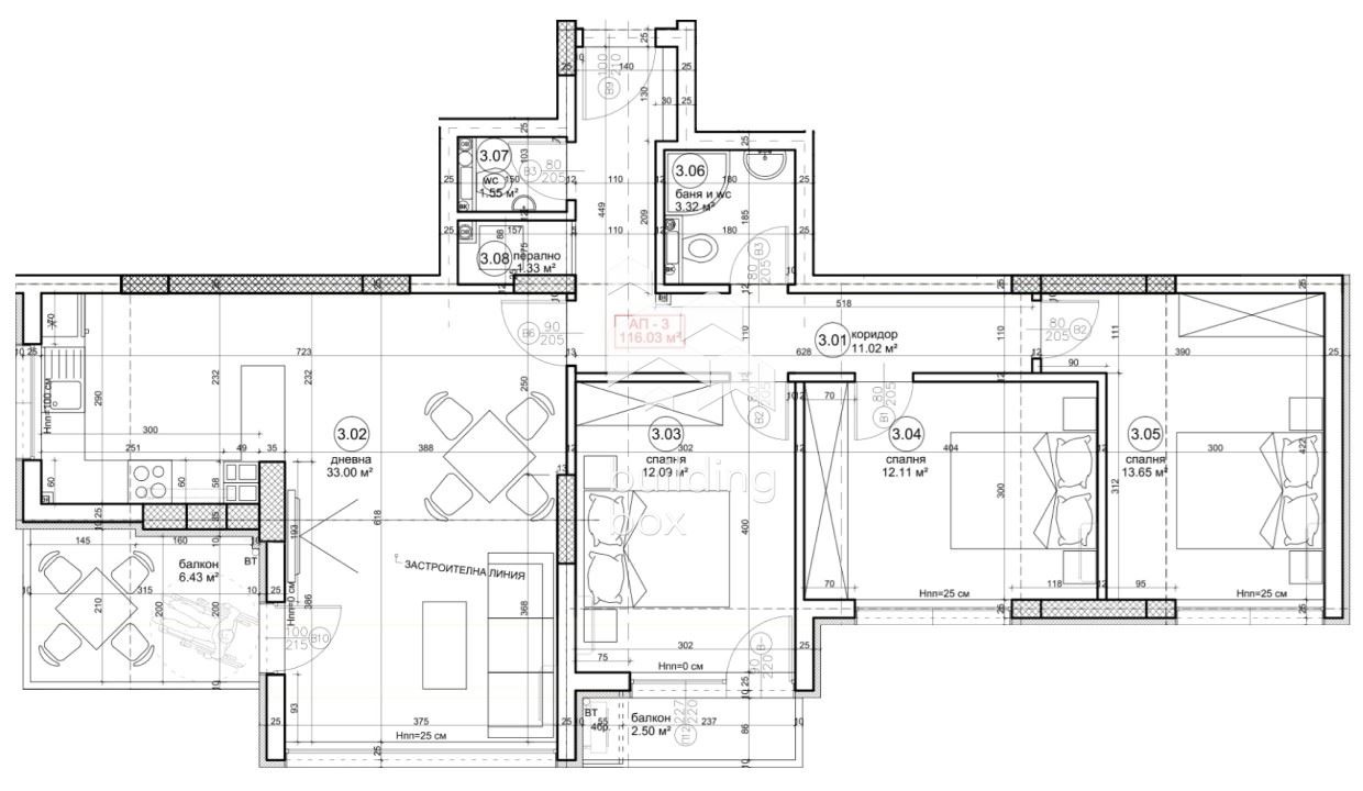
-РАЗПРЕДЕЛЕНИЕ: Апартаментът се състои от всекидневна с кухненски бокс - 33.00 кв.м., три спални по 13.65 кв.м., 12.11 кв.м. и 12.09 кв.м., 2 балкона, баня с тоалетна, тоалетна, перално помещение, коридор.
-ЕТАЖНОСТ: Етаж 3 от общо 13
-ОТОПЛЕНИЕ: Електричество
-ИЗЛОЖЕНИЕ: Юг
-СТРОИТЕЛСТВО: Тухла.
-ПАРКИРАНЕ: Към имота има възможност да се закупи паркомясто;
-СГРАДА: Сградата е с разрешение за строеж. Очаква се Акт 16 - 2028 година
-ИНВЕСТИТОР: Инвеститор с доказана история от вече завършени сгради, които могат да бъдат разгледани като начин на изпълнение, качество, външен вид и стил.
Билдинг Бокс предлага безплатна консултация и съдействие при финансиране на избрания от Вас имот
Оферта 26694







