АКТ 16! ДО КЛЮЧ! ТОП ЛОКАЦИЯ! ДО ПАРК КУКУРЯК! МЕТРОСТАНЦИЯ МИЗИЯ - 300м! ТЕЦ! НАПЪЛНО ПОКРИТ! ОГРОМНА ТЕРАСА! БЕЗ КОМИСИОНА!
Просторен четиристаен апартамент с голяма тераса и функционално разпределение!
Предлагаме просторен и светъл четиристаен апартамент, разположен на етаж с отлична функционалност и усещане за простор.
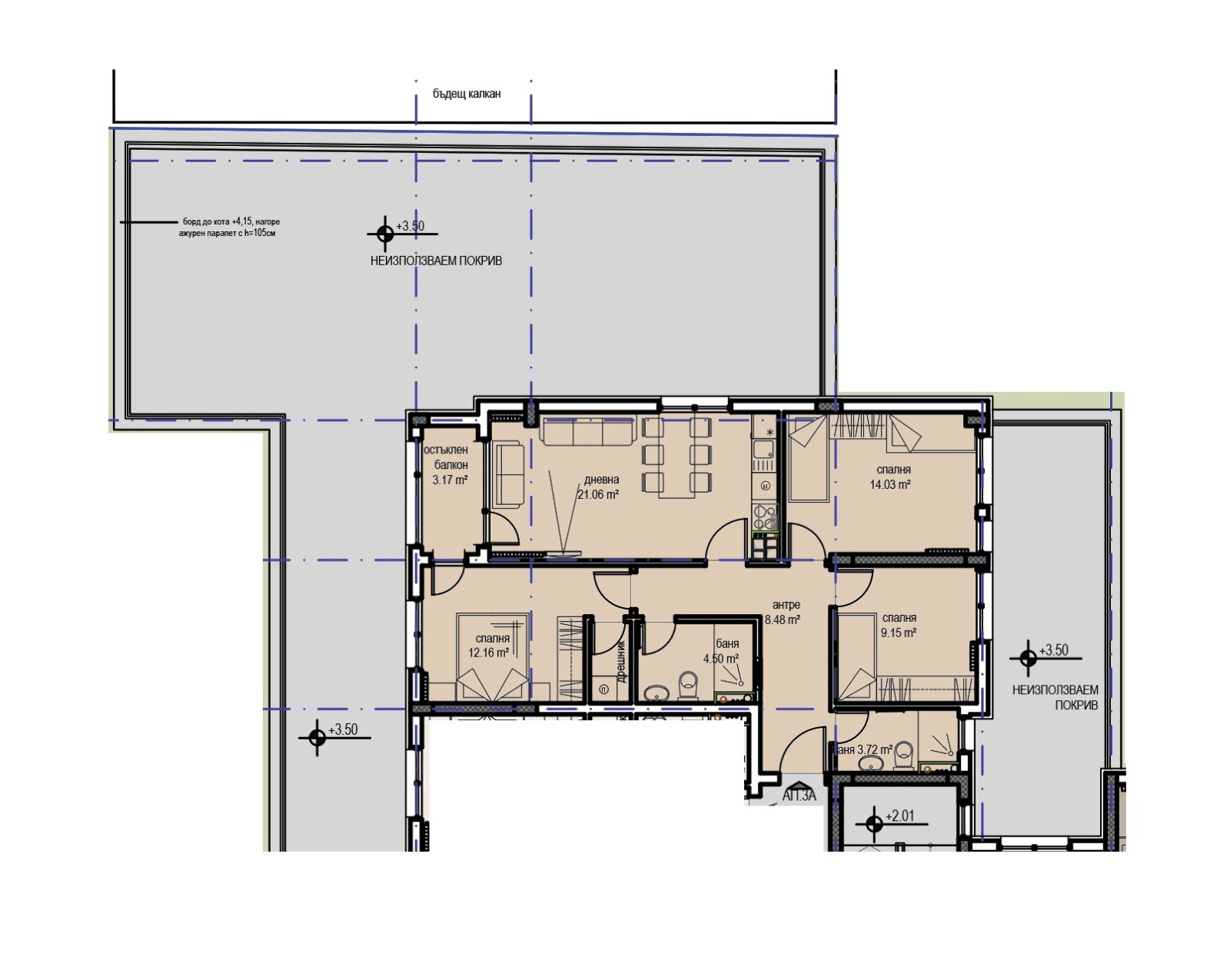
Имотът разполага с дневна с кухненски бокс 25 кв.м (остклената тераса е съединана с хола), три самостоятелни спални (14.03 кв.м, 12.16 кв.м и 9.15 кв.м), две бани с тоалетни, и широко входно антре.
Истинският акцент е голямата покривна тераса, която обгръща апартамента идеално пространство за зона за отдих, градина, барбекю или лятна кухня. Терасата предлага отлични възможности за персонализиране и превръщане в уникално външно пространство.
Разпределението е практично и добре балансирано дневната зона е отделена от спалните, което осигурява комфорт и уединение. Апартаментът е подходящ както за семейно жилище, така и за инвестиция.
Основни предимства:
✅ Три спални
✅ Две бани
✅ Просторна дневна
✅ Огромна покривна тераса
✅ Функционално разпределение
✅ Отличен потенциал за индивидуален дизайн
Имотът предлага рядка комбинация от вътрешен комфорт и външно пространство идеален избор за хора, които търсят повече въздух, светлина и свобода в градска среда.
Отоплението е на ТЕЦ, монтирани радиатори. Индивидуално отчитане БЕЗ влизане в имота!
МАТЕРИАЛИ:
Тухли Wenerberger POROTHERM
Изолация 100 мм
Дограма PVC 6 камерен немски профил с ТРОЕН стъклопакет
Входни врати блиндирани
Асансьори ORONA за 8 лица
Общи части Гранит, метални парапети, латекс
ЛОКАЦИЯТА на проекта е изключително атрактивна! Бързият достъп до ул. Монтевидео Ви гарантира че ще стигнете на време до всяка точка на столицата. Метростанция Мизия е на 5 мин. пеша. На пешеходно разстояние се намира и Нов Български Университет. Овча Купел е стар и уреден квартал и предлага всичко необходимо на вашето семейство. На пешеходно разстояние ще намерите:
Метростанция Мизия 5 мин.
Супермаркет 2 мин.
Денонощна аптека 5 мин.
Фитнес център 4 мин.
Парк 1 мин.
ИНВЕСТИТОРЪТ разчита на екип от професионалисти за изпълнението на това начинание. Основната му дейност е производството на дограма. Дейност стартира далечната 2005 г. с напълно оборудвана производствена база и два търговски обекта в рамките на София. Проектът е с осигурено банково финансиране, което гарантира завършване и въвеждане в експлоатация!
За допълнителна информация и огледи, моля свържете се с нас на 0882 100 101 Волантис България



