На вашето внимание предлагаме мезонет за продабжа в зона Б-19, удобен и функционален, с отлична локация! Мезонетът се намира в новострояща се сграда на ул.Позитано 123, предвиденият срок за въвеждане в експлоатация е края на 2026 г. Сградата е на етап акт 14.
Този прекрасен мезонет е разположен на два етажа 5-ти и 6-ти и предлага просторни и светли помещения, които осигуряват комфорт и уют. Състои се от:
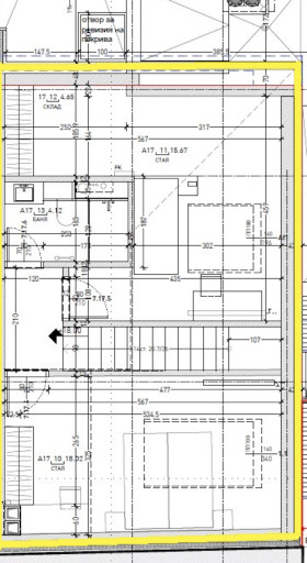
Първо ниво:
-Просторна дневна с възможност за разделяне на различни зони за отдих и работа- 33.27 кв.м.
- Просторна спалня- 17.98 кв.м.
-Складово помещение- 2.62 кв.м.
-Баня с тоалетна- 4.27 кв.м.
-Отделна тоалетна- 2.71 кв.м.
Второ ниво:
-Спалня 2- 15,67 кв.м.
-Спалня 3- 18.02 кв.м.
-Баня с тоалетна - 4.12 кв.м.
-Складово помещение (дрешник)- 4.65 кв.м.
Изложенията са :
Изток, Юг и Запад - апартаментът има изобилие от естествена светлина през целия ден.
Опции за паркиране:
Към мезонета се предлага партерен двоен гараж с площ от 45м² на цена от 81 000 -. удобна възможност за паркиране и допълнително съхранение.
Възможност за закупуване на подземни паркоместа на цена от 32 000
Апартаментът се намира в тих, но централен район с осигурена транспортна свързаност - в близост до метростанция Константин Величков М1,
-автобусни спирки на градски транспорт - 11, 60, 83, 74
-трамвайни спирки- 3, 4, 8, 10, 11, 22
-тролейбусни спирки-1, 5, 7
Локацията осигурява бърз достъп до бул. Александър Стамболийски и бул. Константин Величков. В непосредствена близост е и Мall of Sofia.
Сградата е облицована изцяло с фасадни червени тухли и е в т.нар. Английски стил .
Общите части на сградата ще бъдат луксозно завършени с гранит, а парапетите ще бъдат от стомана.
Осветлението на входното фоайе, стълбището и етажните площадки ще бъде с фотоклетка.
Дограмата е с PVC профил, троен стъклопакет с нискоемисионно стъкло. Прозорците на дневните са френски, а парапетите на терасите са с модерна черна фалцова ламарина.
Асансьорът е на фирма ThyssenKrupp немско производство, напълно безшумен и комфортен при ползване с луксозен дизайн на кабината.
Отоплението на сградата е предвидено да бъде на ТЕЦ, като ще бъде напълно изградена и оборудвана абонатна станция с топломер за сградата.



