Арт Е Строй Черни връх 105
Четиристаен апартамент | Акт 16 | директно от строител и инвеститор.
Арт Е Строй предлага просторен четиристаен апартамент в нова, висок клас многофункционална сграда, разположена на бул. Черни връх 105, в непосредствена близост до Южен парк и мол Парадайс.
Сградата е въведена в експлоатация (Акт 16) през декември 2025 г. и се отличава с модерна архитектура, премиум материали и луксозни общи части.
За сградата:
Многофункционална сграда с 9 етажа;
7 жилищни етажа, партер с магазини и офисен етаж;
Два сутерена с 87 паркоместа;
Веломеста;
Луксозни общи части с мраморни настилки;
Рецепция и портиер;
Контрол на достъп с лицево разпознаване;
Видеонаблюдение;
Високоскоростен асансьор Smart KONE за 15 човека;
Акт 16 декември 2025 г.;
Конструктивни и технически характеристики:
Тухли Wienerberger Porotherm 25 N+F
Алуминиева дограма Reynaers MasterLine 10
Троен стъклопакет с AGC StopRay Vision 70
Каменна окачена фасада 3 см естествен камък
Фасадна изолация Rockwool
Външни мазилки Baumit CreativTop
Сухо строителство Knauf
Хидроизолация Sika
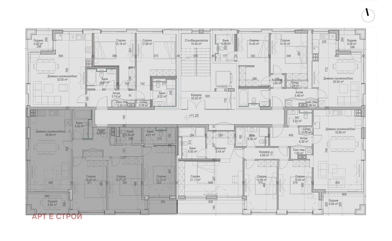
Основни характеристики на апартамента:
Тип: четиристаен
Застроена площ: 150 кв.м
Етаж: 5
Изложение: югозапад
Разпределение:
o Просторна дневна с кухненски бокс
o 3 самостоятелни спални
o 3 бани с тоалетни
o 2 тераси
Детайли:
Мазилка Baumit Ratio 1000 L
5 мм шумоизолация
Тераси с двоен под
Блиндирана входна врата Solid 55
Възможност за завършване до ключ по избор на клиента
Огледи на място са възможни в удобно за Вас време. Ще се радваме да съдействаме с допълнителна информация и пълно съдействие през целия процес.


