Сградата се намира на изключително централна локация на столицата, осигуряваща бърз достъп до основни булеварди, метро, административни, търговски и културни обекти. Проектът е изпълнен с модерна архитектура и монолитна стоманобетонова конструкция, която гарантира стабилност, дълготрайност и високо качество на строителството.
Външните и вътрешните зидарии са изградени от тухли Wienerberger, а топлоизолационната система с минерална мазилка осигурява отлична енергийна ефективност и комфорт.
Фасадното решение комбинира окачена фасада с широкоформатен гранитогрес и минерална мазилка, допълнена от стъклени и ковани парапети и интегрирано фасадно осветление с автоматично управление, което подчертава елегантния облик на сградата. Дограмата е висок клас немска K?mmerling, осигуряваща отлична шумо- и топлоизолация, а покривите са скатни, напълно топло и хидроизолирани с керамични керемиди.
Апартаментите са разнообразни по квадратури и функционални разпределения, проектирани с акцент върху естествената светлина и удобството на обитаване, като е предвидена възможност за довършителни работи по избор на клиента. Отоплението в сградата е централно, чрез топлоснабдяване от ТЕЦ, с индивидуални колекторни кутии, разположени в апартаментите, което гарантира икономичност, а електро и ВиК инсталациите са напълно изградени с модерни системи и дистанционно отчитане.
Централното фоайе и етажните коридори са изпълнени с гипсова мазилка, шпакловка и латекс, като настилките са решени с мрамор или гранит съгласно архитектурния проект, който придава представителна визия и усещане за престиж още при влизане в сградата. Вертикалната комуникация е осигурена от висококачествен асансьор на водещ световен производител като Schindler, OTIS или KONE, със стоманена иноксова кабина, тиха работа и модерни функционалности за комфортно и сигурност.
Паркирането е решено с подземен паркинг, оборудван с автоматична секционна врата, като настилките са от шлайфан бетон с ясно обозначена маркировка по проекта, а електрическата инсталация и осветлението са модерни и енергийно ефективни.
ВиК инсталацията е изпълнена с полипропиленови тръби, като всеки имот разполага с индивидуален водомер с дистанционно отчитане, а канализационната система е от PVC тръби, заустена в градската канализация. Електроинсталацията е напълно завършена, с централно и апартаментно електрическо табло, автоматични предпазители и защита от пренапрежение, като осветлението е проектирано функционално спрямо предназначението на помещението.
Сигурността е приоритет, чрез изграждане на интегрирана система за видеонаблюдение, обхващаща фасадите, входовете и изходите на сградата, подземния паркинг, общите части и асансьорите. Контролът на достъпа е реализиран чрез съвременната система за разпознаване на потребители и сканиране на пръстов отпечатък, което осигурява високо ниво на защита и спокойствие за живущите.
Сградата е оборудвана с цялостна мълниезащитна инсталация, проектирана да предпазва конструкцията и инсталациите от прекъсвания и непреки попадения на мълнии, както и от възможни токови удари. Допълнително изпълнена заземена инсталация, която представлява ключов елемент за защита на електрическата система, предотвратявайки повреди и рискове от високи напрежения, създаващи при атмосферни явления или комуникационни процеси.
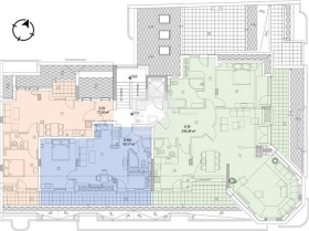
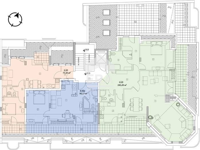
Апартамент номер 42 се намира на седми жилищен етаж и се състои от просторно входно антре, баня с тоалетна, всекидневна с кухненски бокс и трапезария, спалня, втора спалня със собствн санитарен възел и дрешник, тераси.
Сградата съчетава престижна централна локация, висок клас строителство, модерни технологии и безкомпромисна сигурност, което я превръща не просто в място за живеене, а в завършена среда с висока добавена стойност.
ЕРА България е независим кредитен посредник към БНБ с номер BCI000024 и предоставя безплатна консултация и съдействие при финансиране на избрания от Вас имот.
Оферта 0313467







