NEW ESTATES има удоволствието да Ви представи просторен четиристаен апартамент за продажба в новопостроена сграда, разположена в престижния квартал Манастирски ливади - изток.
Локацията предлага бърз достъп до центъра, както и близост до Витоша и Южния парк, които осигуряват възможности за отдих и разходки сред природата.
Кварталът се характеризира с модерна инфраструктура, поддържани улици, развит обществен транспорт и много удобства - магазини, заведения, супермаркет, частна ясла, дентална клиника, естетичен център, салони за красота, бизнес сгради и офиси и др.
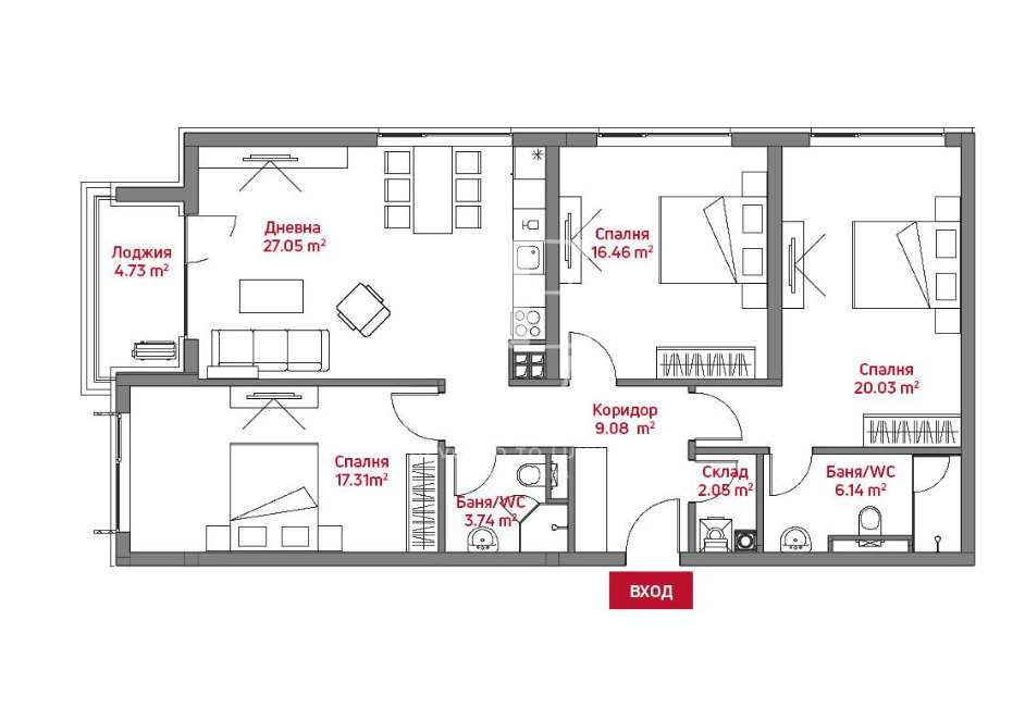
Имотът се намира на третия етаж и предлага гледка към Витоша, осигурявайки максимално естествено осветление и усещане за простор.
Жилището разполага с три просторни стаи, светъл и функционален хол с кухненски бокс, две модерни бани, складово помещение, коридор и тераса, идеална за релаксация.
Има опция за закупуване на две подземни паркоместа на цена по 32 500 EUR
Сградата е оборудвана с всички необходими удобства, включително газификация и инсталации за климатици, което гарантира комфорт и уют за всеки член на семейството.
Апартаментът съчетава съвременен стил, функционалност и престижна локация, като разполага с Акт 16 от м. април 2025г. и предоставя уникална възможност за създаване на изискан и комфортен дом в София.
За повече информация и огледи:
Иван Козаров - 0889429995
е-mail: [email protected]



