Референтен номер: LXH-115930
Представяме Ви VIP апартамента в новострояща се сграда в централната част на Бургас.
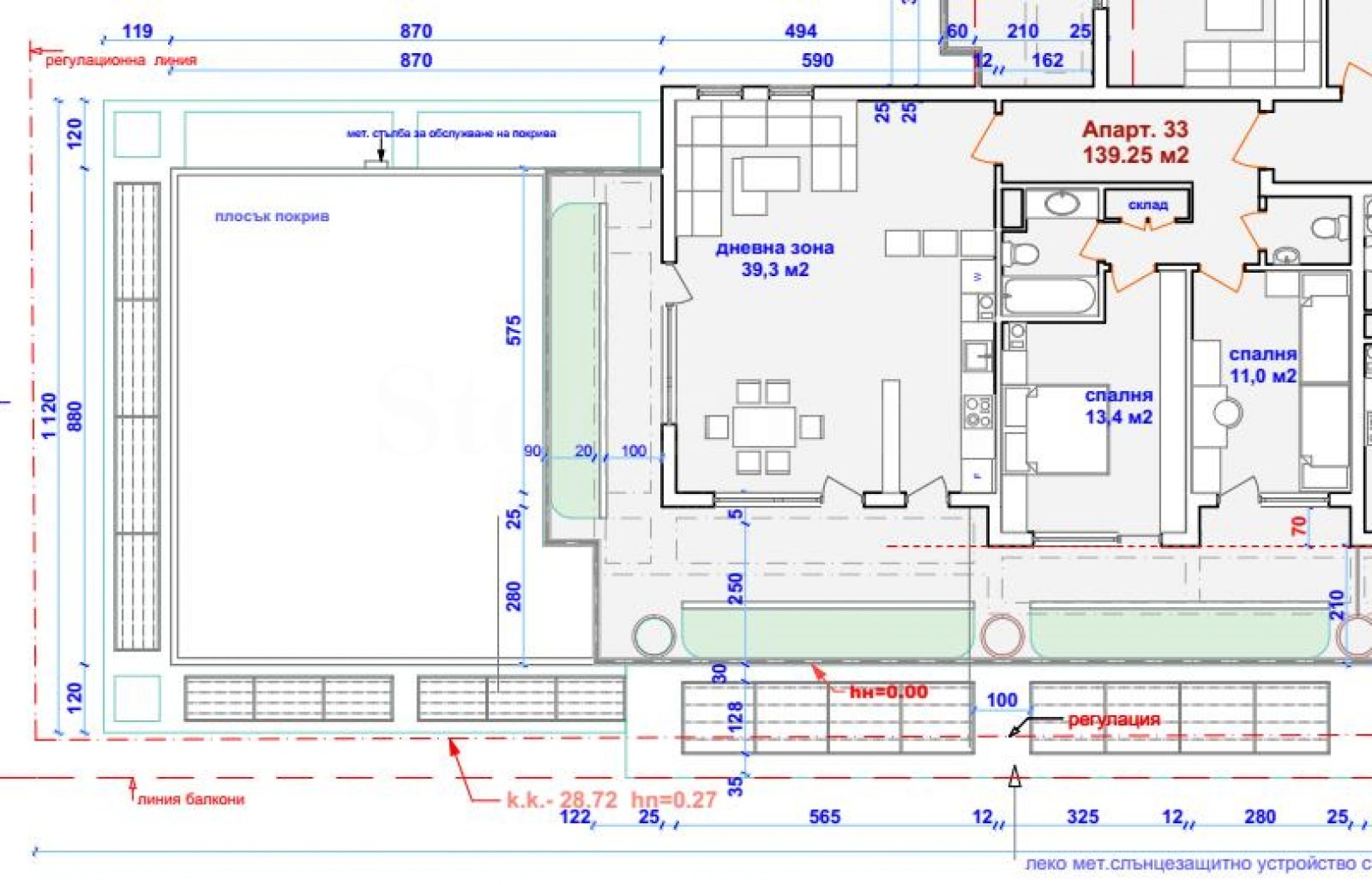
Предлага се просторен тристаен апаратамент с голяма панорамна тераса, в жилищната сграда в спокоен район, буквално на 100 метра от центъра на града.
Терасата може да бъде усвоена и да се превърне в просторна дневна и да се оформят 3 спални.
Имотът е с обща площ от 235,23 кв.м, разположен на 6-и етаж и се състои от:
коридор;
склад;
дневна в кухня;
спалня;
втора спалня;
баня;
тоалетна;
голяма тераса.
Предлага се в степен на завършеност БДС: шпакловка и замазка, качествена дограма, изградени Ел. и ВиК инсталации. Има възможност за довършителните работи по индивидуални интериорни проекти.
В непосредствена близост са разположени операта, театърът и училище. В района има различни супермаркети, банки, заведения и голям избор от обществен транспорт. С оглед на удобната локация, апартаментите в сградата са идеални както за самостоятелно ползване, така и за отдаване под наем. Плажът се намира само на 1 км от сградата.
Срок на завършване на сградата: декември 2025 г.
Строителството е качествено, по съвременни стандарти:
монолитна стоманобетонна конструкция;
външна и вътрешна тухлена зидария с топло- и шумоизолация между отделните помещения;
хидроизолация в основите на сградата;
хидравличен асансьор;
стълбищната клетка и асансьорите са отделени посредством димоизолиращи врати на всички нива;
общи части - подови настилки от гранитогрес, стени - шпакловка, латексова боя;
петкамерна дограма, двоен стъклопакет.
Сградата е със захранване от самостоятелен трафопост. Има мълниезащитна и заземителна инсталации.
За повече информация, моля свържете се с нас.
За повече информация свържете се с нас и цитирайте референтния номер на имота. Моля, кажете, че сте видeли обявата в този сайт.
Референтен номер: LXH-115930
Тел: +359 889 007 010
Моб: +359 877 777 888 (WhatsApp, Viber, SMS)
Отговорен брокер:Стоунхард ПРЕМИЪР







