Референтен номер: PLV-128392
Представяме четиристаен апартамент в нов комплекс, в кв. 'Остромила'. Удобна локация в близост до търговски обекти, което ще осигурява лесен достъп до основни услуги и транспортни мрежи, които са от съществено значение за комфортния живот в района.
БЕЗ КОМИСИОНА!
Строителството стартира ноември 2024 г., а Акт 16 е предвиден до края на 2026 г.
Комплексът ще се състои от две сгради с двустайни, тристайни и един четиристаен апартамент, паркоместа, гаражи и зелени площи. Архитектурата му е съобразена със съвременните тенденции за обзавеждане, отопление и практичност. Строителството отново е безкомпромисно и педантично, произтичащо от дългогодишния опит на инвеститора.
Сградите ще бъдат построени с модерна архитектура, комбинираща елегантност и функционалност. Конструкцията ще включва издръжливи материали, които ще осигурят дълготрайност и безопасност на обекта. Проектът предвижда подземни паркоместа за удобство на жителите, както и наземни паркинги с лесен достъп.
Комплексът ще разполага с необходимите удобства, включително просторни зелени площи, детски и спортни съоръжения. Проектът ще се фокусира върху устойчивостта и енергийната ефективност, като ще бъдат внедрени технологии за възобновяема енергия, като соларни панели и иновативни системи за отопление и охлаждане. Ще има възможност за електрическо зареждане на превозни средства, както и други устойчиви решения ще бъдат интегрирани в комплекса.
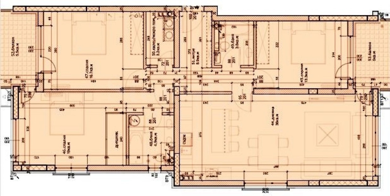
Параметри на имота
Жилището с обща площ от 155.66 кв.м е разположено на 2-ри етаж.
Апартаментите се предават в степен на завършеност по БДС:
вътрешни стени и тавани - мазилка;
под - циментова замазка с шумоизолация;
мокри помещения: стени - мазилка, под - циментова замазка;
балкони и тераси: под - подови плочи, парапет - по проект;
входна врата;
вътрешни интериорни врати;
външна дограма алуминиева;
ел. инсталация: завършена, ...
За повече информация свържете се с нас и цитирайте референтния номер на имота. Моля, кажете, че сте видeли обявата в този сайт.
Референтен номер: PLV-128392
Тел: +359 889 007 010
Моб: +359 877 777 888 (WhatsApp, Viber, SMS)
Отговорен брокер:Стоунхард ПРЕМИЪР
Без комисиона от купувача







