Forton Homes представя изключителен четиристаен апартамент в нова, модерна сграда в един от най-предпочитаните квартали на София Кръстова вада.
Описание на имота:
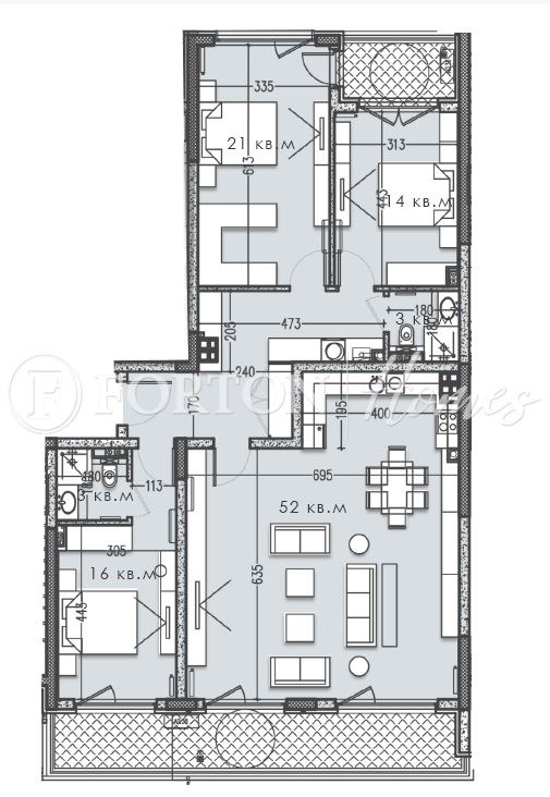
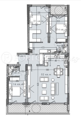
Апартаментът предлага функционално разпределение и комфорт:
Просторна дневна с кухня и трапезария
Три спални
Две бани с тоалетни
Складово помещение
Гардеробна
Две тераси с изложение запад
Имотът е с обща площ от 196 кв. м. и е разположен на четвърти етаж.
Степен на завършеност - AKT 14
Акт 16 юли 2026 г.
Предимства на проекта:
Сутерен с гаражи, паркоместа и мазета
Зелени площи със зона за отдих
Тристайни и четиристайни жилища с панорамни тераси
Възможност за завършване до ключ
Технически характеристики:
Сградата е проектирана с висококачествени материали и внимание към детайла:
Окачена фасада с естествен камък
Тухли Wienerberger Porotherm 25 N+F
Топлоизолационна система Baumit 10 см
Хидроизолация Sika
Алуминиева дограма Reynaers MasterLine 10 троен стъклопакет с енергоефективно външно стъкло
Двуконтурен газов котел Viessmann и подово отопление
Луксозни общи части с настилки от естествен камък
Асансьор Kone
Шумоизолация между плочите 5 мм мембрана DRACT
Тераси с двоен под и гранитогрес
Входни блиндирани врати Solid 55
Апартаментите се предлагат на гипсова мазилка и замазка
Локация:
В близост до:
Частно училище Петър Берон
Фантастико и LIDL на бул. Черни връх
Само 5 минути с автомобил от Paradise Center?
Посочената цена на имота е без включено ДДС.
Водещ консултант: Мира Зашева
+359 882 344 673
[email protected]







