Модерна новострояща се сграда със съвременна визия, подземен и надземен паркинг, 13 жилищни етажа и срок на завършване първото тримесечие на 2028 г. Сградата е с отлична локация-в близост до градски транспорт и метро. Монолитно строителство с висококачествени материали. Обектите се предават на замазка и шпакловка, съгласно изискванията на БДС. Отоплението ще бъде решено на ток-с климатици, а след Акт 16 - възможност за термопомпи. Гъвкава схема на плащане. Имате възможност на избор между функционални двустайни, тристайни, многостайни апартаменти и впечатляващ пентхаус на последния етаж с уникална панорама; подземни и надземни паркоместа;
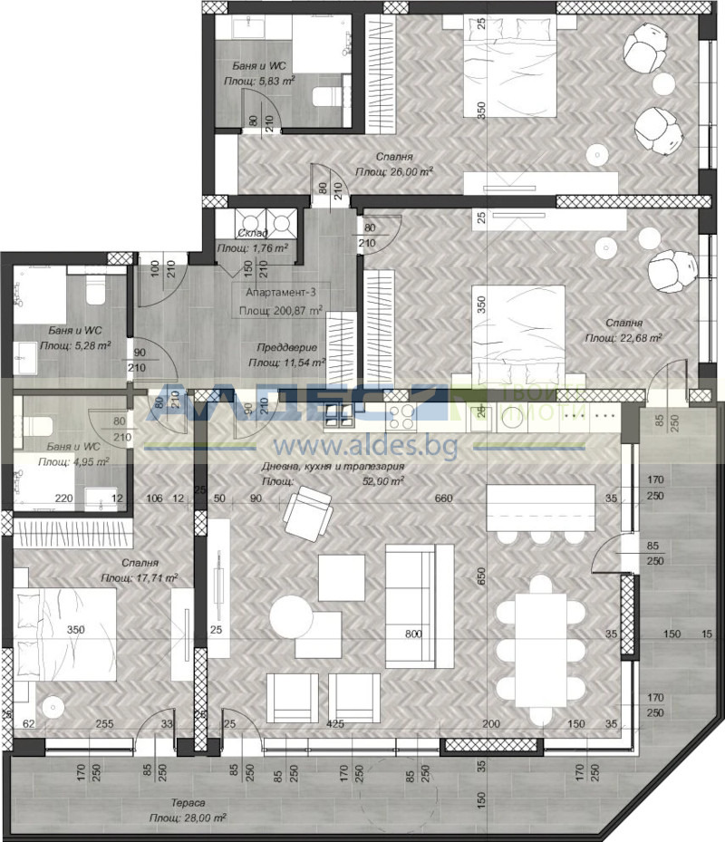
НОВ, ЛУКСОЗЕН, ТУХЛЕН ЧЕТИРИСТАЕН апартамент в центъра на София, в близост до важни локации, като: административни сгради, учебни заведения, множество магазини, детски градини. Апартаментът ще бъде разположен на етаж трети от тринадесет етажна сграда. Застроена площ: 200.87 кв.м. Обща площ: 236.85 кв.м. РАЗПРЕДЕЛЕНИЕ: предверие-11.54 кв.м., склад-1.76 кв.м., 3 бани с тоалетни, съответно-5.83 кв.м., 5.28, и 4.95 кв.м., 3 спални, съответно: 25.00 кв.м. , 22.68 кв.м., 17.71 кв.м., дневна, кухня и трапезария-40.00 кв.м., ъглова тераса-28.00 кв.м. ИЗЛОЖЕНИЕ: ЮЗ а3
В тази уникална, с модерна естетична фасада сграда, проектирана с най-съвременние технологии да издържи и като конструкция, и като стойност на имота, предлагаме от двустайни до многостайни апартаменти на цени от: 316575.63 -1557812.30 евро.
ЗА ПОВЕЧЕ ПОДРОБНОСТИ И ОГЛЕДИ: 0892242802, оферта: 11867 а3







