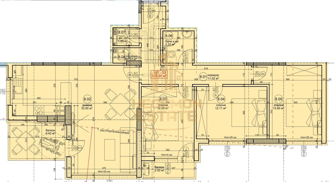
Агенция за недвижими имоти HEGEMON ESTATE Ви предлага просторен южен четиристаен апартамент във Възраждане, до парк Възраждане. Жилището се намира в новострояща се сграда на ет. 8/13 с асансьор. Разпределение: коридор, всекидневна с кухненска част- 33 кв.м. с излаз на широка тераса, три спални, едната с втори балкон, баня, тоалетна, килер. Сградата се изгражда от доказан строител с много завършени сгради, с най-качествени материали, според всички изисквания на Европейския съюз. Изложението на всички стаи е южно, а високият етаж гарантира простор и панорама към Варненското езеро. Отлична локация.
Може да разчитате на екипа на HEGEMON ESTATE за получаването на професионални консултации, както и проверка и изготвяне на всички необходими документи за закупуването на мечтаният от вас имот. При необходимост съдействаме на нашите клиенти и за отпускане на банков кредит при най- добри условия!
Код на офертата: 14846.







