АКТ 16! До мол ПАРАДАЙС! Панорама Витоша! МЕТРОСТАНЦИЯ! 4-стаен 430 400 евро!!
До мол ПАРАДАЙС, до МЕТРОСТАНЦИЯ и градски транспорт!
Референтен код в www.novdom1.bg: 83237
Консултант недвижими имоти: Горáн Радков, тел. 0897 000 214
Апартаментът представлява:
Четиристайно жилище, разположено на 8-ми етаж, изцяло покрито, във висок клас сграда с луксозни общи части, съвременна визия и безупречно качество!
Високи френски прозорци! Дограмата е много висок клас - алуминиева, с троен стъклопакет и прекъснат темомост на марката REYNAERS.
Жилището е снабдено с висок клас френски климатици, както и монтирана отоплителна система на ГАЗ, вкл. поставени алуминиеви радиатори!
Топло, уютно и просторно жилище с чиста жилищна площ от 110 кв. м.
ОБЪРНЕТЕ ВНИМАНИЕ: Апартаментът може да бъде използван както и като ЧЕТИРИстаен с три отделни спални, така и като просторен ТРИстаен в зависимост от предпочитанията на собственика!
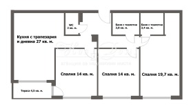
Помещенията са разпределени по следния начин:
Коридор с площ 4,8 кв. м.;
Дневна с кухня и трапезария с площ около 27 кв. м.!!! с изход на тераса;
Тераса с панорамна гледка с площ 4,5 кв. м.;
Коридор към спалните и санитарните помещения 3,6 кв. м.;
Малка спалня с площ около 12 кв. м.;
Втора спалня с площ около 14 кв. м.;
Голяма спалня 17,3 кв. м. с дрешник 2,4 кв. м. или общо 19,7 кв. м.;
Баня стоалетна 3,4 кв. м.;
Баня стоалетна 3,8 кв. м.;
Трето санитарно помещение - тоалетна / мокро помещение или склад 2 кв. м.;
Множество предимства:
Отлично местоположение! На метри от мол Парадайс!
На метри от МЕТРОСТАНЦИЯ Витоша!
ПРОСТОРЕН!
Нескриваема панорамна гледка!
Хранителни хипермаркети и градски транспорт!
В близост до едно от най-добрите лечебни заведения (болница Токуда);
АКТ 16!;
Отлично качество на изпълнение!
Висок клас дограма;
Висок клас сграда и луксозни общи части!
Възможност за използване като просторен тристаен или като четиристаен!
Допълнително към апаратмента може да бъде закупен гараж на цени започващи от 42 000 евро. Има и по-големи гаражи, вкл. и ДВОЙНИ гаражи.
Същият апартамент може да се закупи и на 7 и 8 етаж!
ВНИМАНИЕ: СНИМКИТЕ НА ГОТОВАТА КУХНЯ С КУХНЕНСКИ ШКАФОВЕ СА ОТ ДРУГ - ИДЕНТИЧЕН И ВЕЧЕ ОБЗАВЕДЕН АПАРТАМЕНТ С ЦЕЛ ВИЗУАЛИЗАЦИЯ ЗА ДА МОЖЕ ПО-ЛЕСНО ДА СЕ ПРИДОБИЕ ПРЕДСТАВА КАК БИ ИЗГЛЕЖДАЛА ГОТОВА МОНТИРАНА КУХНЯ!
НОВ ДОМ 1 разполага с:
Юридически Отдел - извършващ всички необходими юридически и технически проверки, организира всички етапи на сделката до нейното финализиране с нотариално прехвърляне на имота.
Кредитен Отдел - съдействащ за отпускане на банков кредит при възможно най-добри условия за клиента, като избора на банка се определя спрямо нуждите и възможностите на клиента.
Строително-Ремонтен Отдел - гарантиращ при нужда цялостен ремонт на вашето жилище до ключ при най-изгодни условия и цени.
НЯМА ЗНАЧЕНИЕ ДАЛИ ТЪРСИТЕ ИЛИ ПРОДАВАТЕ! ВСИЧКИ НАШИ КОНСУЛТАЦИИ СА БЕЗПЛАТНИ!
СВЪРЖЕТЕ СЕ С НАС И ЗАПОВЯДАЙТЕ В ОФИСА НА АГЕНЦИЯ НОВ ДОМ 1, ЗА ДА ВИ ПРЕДЛОЖИМ ТАЗИ И МНОГО ДРУГИ ОФЕРТИ. АГЕНЦИЯТА РАЗПОЛАГА С БОГАТ ИЗБОР ОТ ИМОТИ!







