Представяме функционален, супер просторен четиристаен апартамент за продажба, в историческия център на столицата, на минути от Женски пазар и Лъвов мост.
Пред Акт 14, Акт 16 се очаква до края на септември 2026 г.
Сградата е в процес на строителство, отличава се с модернистична и изчистена визия, а улицата е с много добра инфраструктура и околна среда, разположена между:
бул. 'Мария Луиза';
бул. 'Христо Ботев';
бул. 'Сливница'. Модерната сграда е с удобен достъп до градски транспорт, метростанция и е с бърза връзка с широкия център на града и летище София. Пешеходното разстояние до забележителности, разнообразни търговски обекти, арт пространства и ресторанти превръщат имотите в сградата в привлекателна опция както за лично ползване, така и за инвестиция.
Проектът е дело на инвеститор с дългогодишен опит и редица реализирани проекти в София.
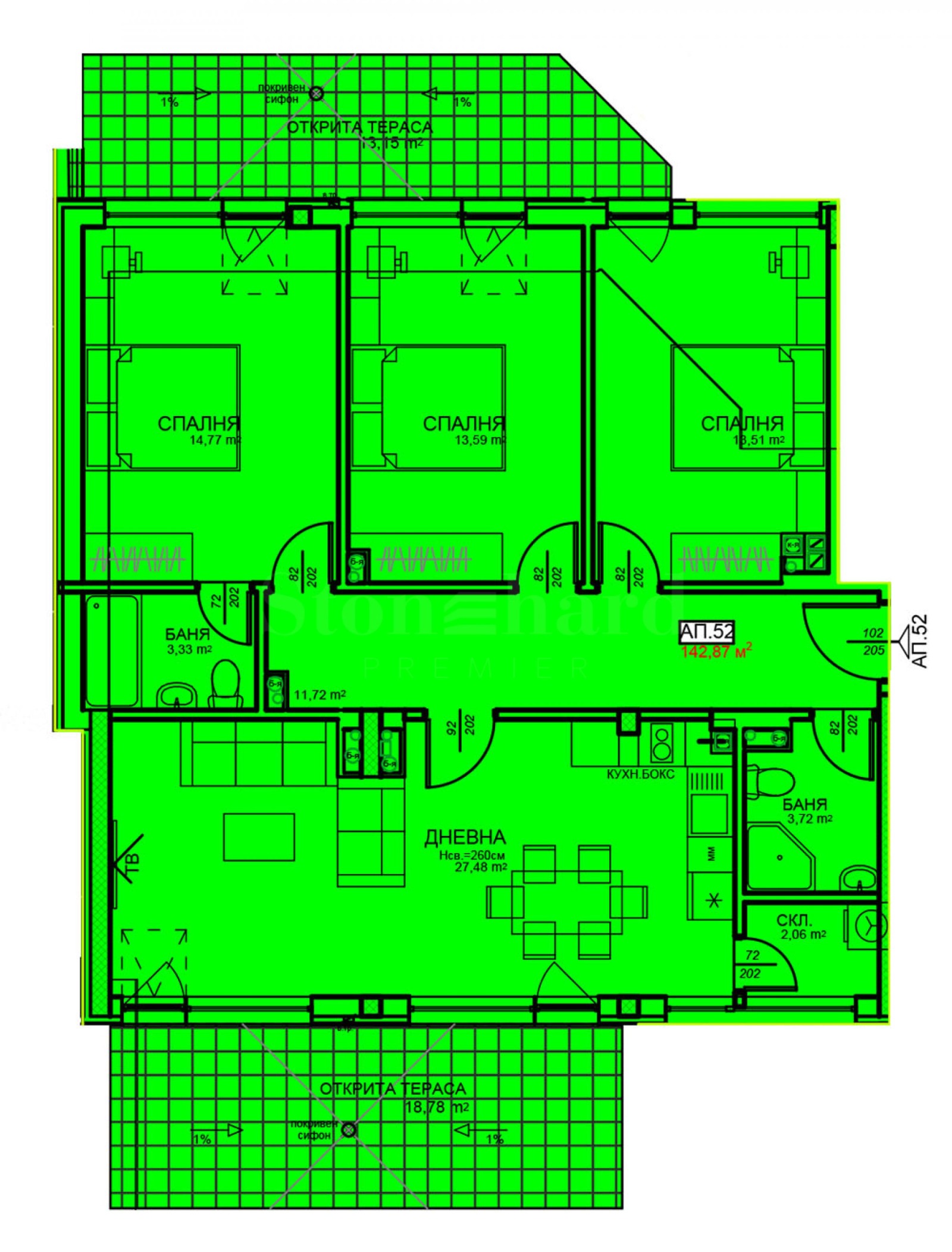
Апартамент 52 е разположен на ет. 7.
Разпределение:
антре/коридор;
две бани с тоалетни;
дневна с кухненски бокс: 27.48 кв.м, със склад;
тераса от 18.78 кв.м към дневната;
спалня 1: 13.51 кв.м;
спалня 2: 13.59 кв.м;
спалня 3: 14.77 кв.м;
тераса - 13.15 кв.м с излаз от трите спални. Интелигентно проектирани жилища
Апартаментите в сградата отговарят на всички съвременни изисквания за функционалност и уют. Във всички жилища са проектирани просторни дневни и спални помещения с френски прозорци позволяващи влизането на изобилно количество дневна светлина. Всеки апартамент е снабден със складово помещение/мокро помещение и излаз на тераса с минимална дълбочина от 1.50 м, позволяваща комфортното разположение на маса с четири стола.
Гъвкави схеми на плащане - при резервационен депозит от 3 000 Евро и 20% от стойността на имота на ...
Цената на имота е 399 524 евро / 781 401.02 лв. без ДДС или 479 428 евро / 937 681.23 лв. с ДДС. Данъчен кредит може да се ползва при определени условия.
За повече информация свържете се с нас и цитирайте референтния номер на имота. Моля, кажете, че сте видeли обявата в този сайт.
Референтен номер: SOF-127148
Тел: +359 889 007 010
Моб: +359 877 777 888 (WhatsApp, Viber, SMS)
Отговорен брокер:Стоунхард ПРЕМИЪР
Без комисиона от купувача
Виж всички обяви в stonehard.bazar.bg или тук







