Представяме комфортен четиристаен апартамент за продажба, в новопостроена бутикова сграда с получен Акт 15 в кв. 'Драгалевци'.
Спокойна локация
Сградата е удобно разположена в близост до LIDL и ключовите булеварди. Районът предоставя тиха жилищна атмосфера, изпълнена с красиви гледки и природни дадености, същевременно връзката с динамиката на града се осъществява посредством бързия достъп до големи пътни артерии - 'Околовръстен път' и бул 'Черни връх'.
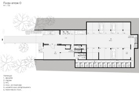
Имотът е ситуиран на втори жилищен етаж и се състои от:
антре,
всекидневна с кухня,
3 спални,
2 бани с тоалетни,
мокро помещение, сервизно помещение,
обширна тераса. Площообразуване:
обща площ - 157.99 кв.м;
общи части - 26.99 кв.м;
чиста площ - 131 кв.м;
към апартамента има мазе с площ 4 кв.м. Апартаментът се предлага по БДС, с плаващи подови замазки върху слой от шумоизолация, които повишават комфорта и защитата от шума; алуминиева дограма, отговаряща на всички съвременни стандарти, с панорамно остъкляване към планината и града.
За сградата
Сградата е от затворен тип и предлага богато озеленен двор и голям брой дървета, за осигуряване на прохладен микроклимат през лятото.
Изпълнението е висококачествено, предвидено предимно с естествени материали - фасада с облицовка от естествен камък и частична облицовка от естествена дървесина - сибирска лиственица.
Жилищата са с високи тавани, висок клас алуминиева дограма и френско остъкляване. Подходът към апартаментите е през просторно фоайе, а вертикалната комуникация се осъществява посредством асансьор и представително стълбище с естествено осветление и проветряване.
Има възможност за закупуване на подземно паркомясто на цена 30 000 Евро без ДДС.
Очакваме Вашето ...
Цената на имота е 473 970 евро / 927 004.75 лв. без ДДС или 568 764 евро / 1 112 405.69 лв. с ДДС. Данъчен кредит може да се ползва при определени условия.
За повече информация свържете се с нас и цитирайте референтния номер на имота. Моля, кажете, че сте видeли обявата в този сайт.
Референтен номер: SOF-127784
Тел: +359 889 007 010
Моб: +359 877 777 888 (WhatsApp, Viber, SMS)
Отговорен брокер:Стоунхард ПРЕМИЪР
Без комисиона от купувача
Виж всички обяви в stonehard.bazar.bg или тук







