ДИРЕКТНО ОТ ИНВЕСТИТОРА - новостроящ се жилищен комплекс!
Сити Пропъртис ООД Ви представя многостаен апартамент 12Г2 в комплекс Aurora Residence проектиран с модерна визия и стил в съчетание с висококачествени материали и технологии, отговарящи на най - съвременните изисквания.
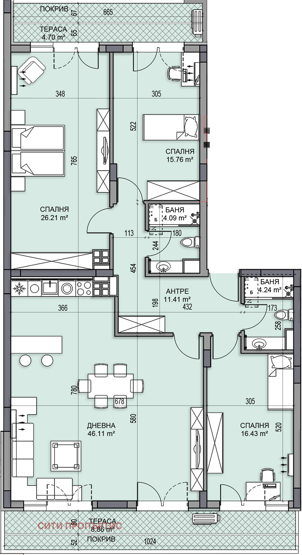
Апартаментът е на дванадесети жилищен етаж, част от секция Г и предлага функционална обща квадратура от 183,70 кв.м. Състои се от спалня (26,21 кв.м.), спалня (15,76 кв.м.), спалня (16,43 кв.м.), хол с кухня (46,13 кв.м.), баня с тоалетна (4,09 кв. м.), баня с тоалетна (4,24 кв. м.), антре (11,41 кв.м.), тераса (8,86 кв.м.) и тераса (4,70 кв.м.).
Локацията осигурява бърз и лесен достъп до центъра на града. Комплексът е разположен в близост до големи пътни артерии, търговски обекти, училища и детски градини.
На партер, се разполага иновативно общо пространство, за ползване от всички собственици Aurora Lounge . Естетика и уют разгърнати на едно място в обособени зони с мека мебел, приканващи за почивка и срещи с приятели на чаша чай или кафе. В допълнение е и удобен работен кът с достъп до интернет и възможност за работа в непринудена обстановка.
Характерно за строителството на жилищните секции, са малкото на брой апартаменти по 2, 4 или 5 на етаж и височина на таваните - 2,70 м.
На разположение са удобства, като подземен и надземен паркинг, красиво озеленени площи, обособен детски кът, зони за отдих, подземно и надземно паркиране.
В унисон с желанията на нашите клиенти, Aurora Residence предлага напълно завършени апартаменти, с внимателно подбран интериор и перфектно изпълнение, отговарящи на изискванията на купувачите.
Цялостната визия на комплекса и останалите апартаменти, може да разгледате на: Aurora residence - Сити Пропъртис (city-bg.com)
За допълнителна информация, се свържете с нас на: тел +359877277956, +359877277935 или имейл: [email protected]







