Представяме многостаен апартамент в самото сърце на Пловдив, разположен в елегантна сграда с бутиков дух, впечатляваща архитектура и първокласна локация на метри от Градската градина, до централната пешеходна зона.
Това е не само предпочитана локация това е начин на живот.
Строителството стартира юни 2025 г.
Животът в централната градска част Ви дава достъп до всичко необходимо като:
детски градини, основни и езикови училища идеални за семейства;
културни локации театри, музеи, галерии;
модерни заведения, арт събития, улична култура;
удобен градски транспорт и връзка с всички части на града.
Параметри на имота:
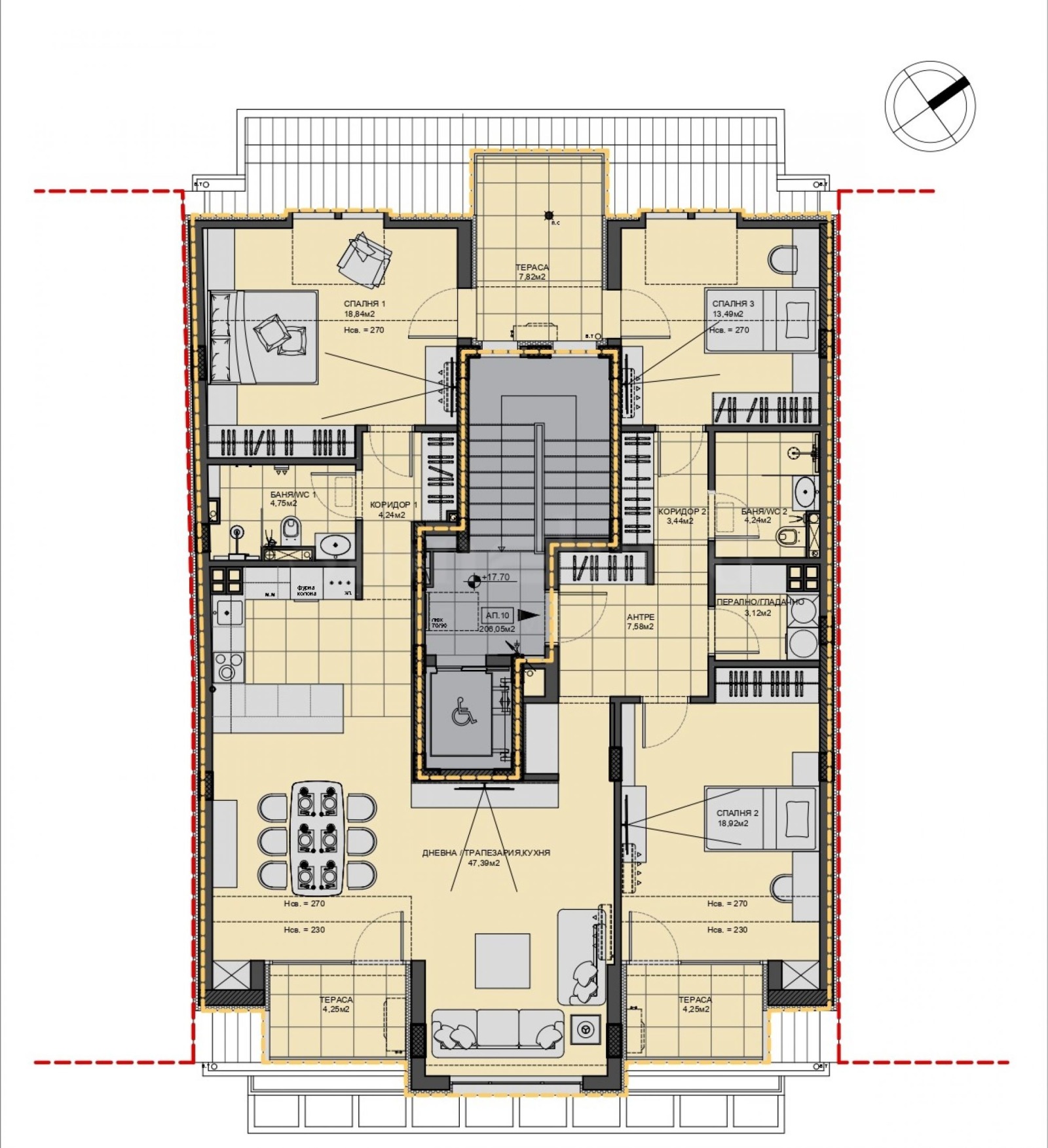
Простор от 205 кв.м, изпълнен със светлина, единствен апартамент на последен етаж усещане за уединение и престиж. Изключително разпределение и възможност за личен интериорен проект.
Разпределение:
антре/коридор;
дневна с кухня;
три спални;
две бани с тоалетна;
перално помещение;
три тераси с гледки към града.
Предимства:
сграда с подчертана индивидуалност, само 10 апартамента и селектирана среда;
луксозни общи части и съвременни технологии;
топлоизолация, шумоизолация, видеонаблюдение;
сладкарница/италиански магазин в партера истинско удоволствие под дома.
Имотът се издава в степен на завършеност по БДС с възможност за довършителни решения по Ваш вкус и стил.
* Изображенията са с илюстративна цел.
Технически характеристики:
вътрешни стени многокамерни,шумозиолиращи тухли Wienerberger;
монолитна стоманобетонна конструкция;
топлоизолация и слънцезащита;
система за видеонаблюдение и контрол на достъпа;
дограма Schüco LivIng - седемкамерен профил с троен стъклопакет, 50% отваряемост;
окачена вентилируема фасада;
стаи и коридори - гипсова шпакловка и циментова замазка;
входна врата - противопожарна;
ВИК - изцяло изградени с полипропиленови водопроводни тръби по ...
За повече информация свържете се с нас и цитирайте референтния номер на имота. Моля, кажете, че сте видeли обявата в този сайт.
Референтен номер: PLV-125924
Тел: +359 889 007 010
Моб: +359 877 777 888 (WhatsApp, Viber, SMS)
Отговорен брокер:Стоунхард ПРЕМИЪР
Виж всички обяви в stonehardbg.bazar.bg или тук
        
       
         
         
         
         
         
         
         
         
         
         
         
         
         
             
             
             
             
             
             
             
             
             
             
             
             
            






