Има сгради, които се строят, за да бъдат продадени. Има и такива, които се проектират, за да останат. Тази е от вторите!
Представяме четиристаен апартамент в нов бутиков комплекс в кв. 'Христо Смирненски'. В близост до супермаркет Лекси, МБАЛ Пълмед, УМБАЛ Св. Георги, Математическа гимназия, СУ 'Св. Св. Кирил и Методий'.
В процес на строителство, Акт 14 се очаква 30.06.2026 г., Акт 15 до 30.06.2027 г., а Акт 16 е предвиден до 30.12.2027 г.
БЕЗ КОМИСИОНА!
Проектът е замислен с идеята да не изглежда като нищо друго в квартала. Фасадата е вентилируема, с архитектурни детайли, които ще изглеждат актуални и след десет години.
Интериорът на общите части ще бъде изпълнен с материали от висок клас, естествени текстури и светлина, която променя усещането за пространство.
Сградата е с един вход и предлага само 27 апартамента - двустайни, тристайни и четиристайни.
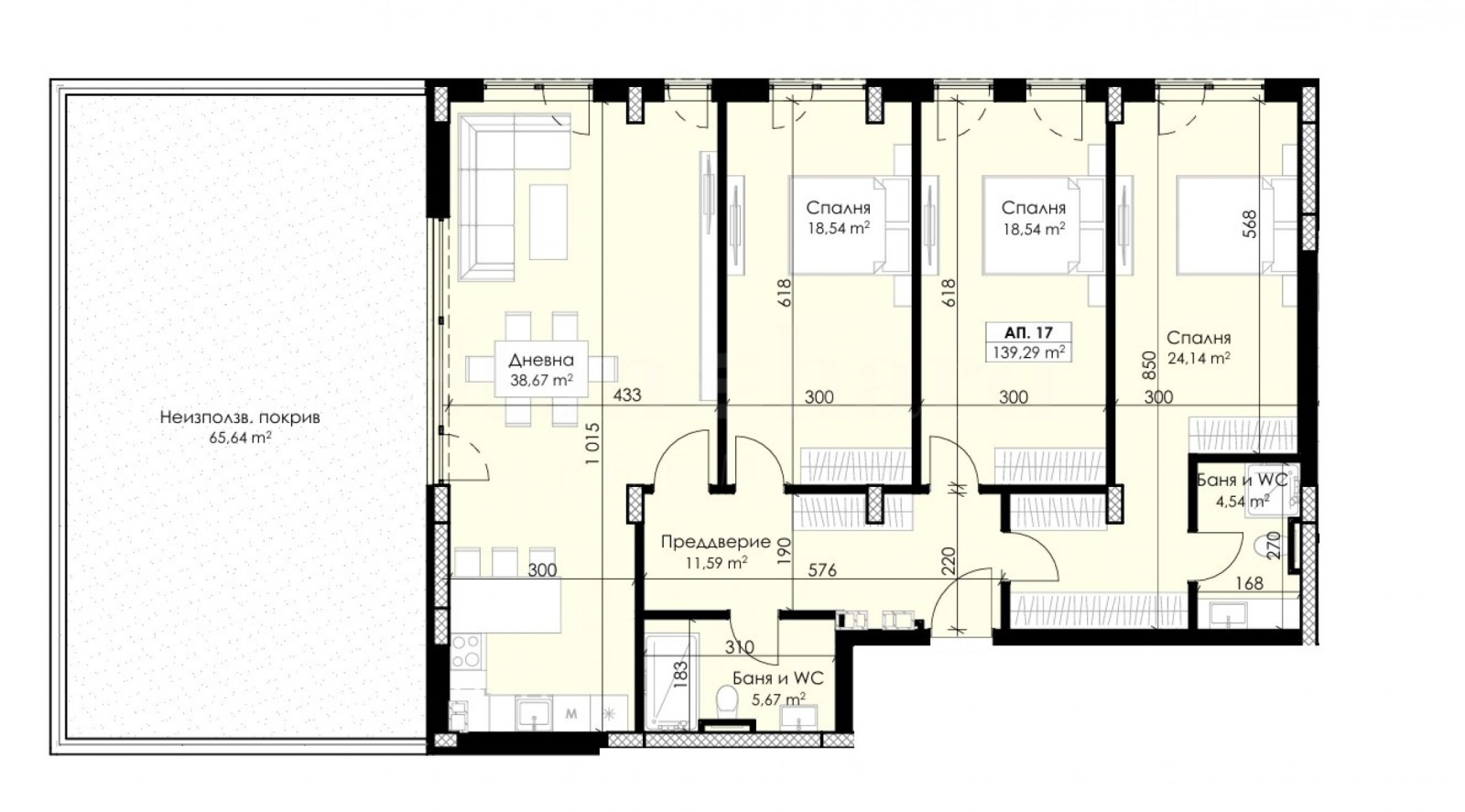
Параметри на имота
Жилището с обща площ от 162,56 кв.м е разположено на 5-и етаж от 8.
Апартаментите се издават в степен на завършеност по БДС, на шпакловка и замазка:
стени и тавани - турбозолна мазилка;
под - на циментова замазка;
монтирана входна врата - блиндирана;
електро инсталация - до ключове и контакти;
водопровод и канализация до тапа.
Технически характеристики:
вентилеруема фасада;
тухли - Wienerberger Porotherm 25 Profi - эа външни стени, Wienerberger Porotherm 12 Profi - за преградни стени;
хидроизолация - 1 см - хидроизолация от два пласта битумна мушама 5 см, изравнителна циментова замазка, 1 см - пароизолация от полиетилелово фолио;
топлоизолация - 10 см - топлоизолация на покрив с XPS плочи;
шумоизилация в под и таван и между отделните апартаменти;
светла височина на помещенията - 2,63 м;
големи прозорци, триплекс стъклопакети и алуминиева дограма Reynaers MasterLine 8 HI система от най-висок клас, осигуряваща топло-, шумо- и ...
За повече информация свържете се с нас и цитирайте референтния номер на имота. Моля, кажете, че сте видeли обявата в този сайт.
Референтен номер: PLV-135161
Тел: +359 889 007 010
Моб: +359 877 777 888 (WhatsApp, Viber, SMS)
Отговорен брокер:Стоунхард ПРЕМИЪР
Без комисиона от купувача
Виж всички обяви в stonehardbg.bazar.bg или тук
        
       
         
         
         
         
         
         
         
         
         
         
             
             
             
             
             
             
             
             
             
            






