Нова стилна сграда! Изложение юг-север! Изцяло с ново строителство! Разсрочено плащане!
Най- актуалните Имоти са samhome.bg Реф. Номер: 35074
Отлична локация в непосредствена близост до: бул. 'Ян Хунияди', бул. 'Цар Освободител', КАТ-Варна, училища, детски градини, вериги магазини, медицински центрове. На пешеходно разстояние от МЕТРО.
Автобусна спирка: 200м.
Международно летище: 3,8км.
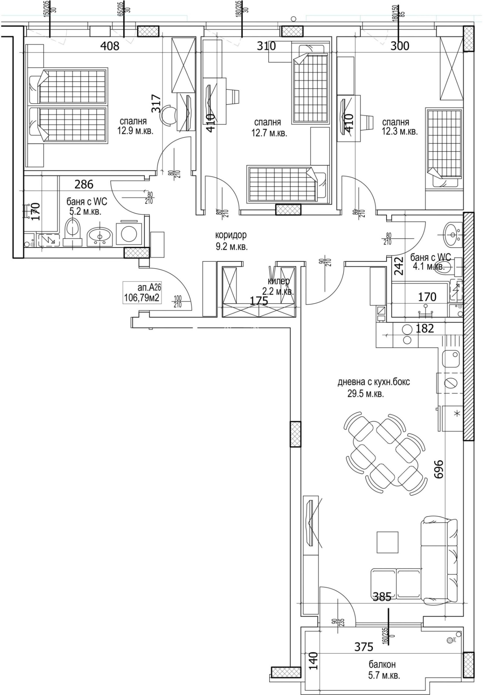
Описание на имота: Всекидневна с кухненска част, три спални, две бани с тоалет, килер, коридор и тераса.
Чиста Жилищна Площ: 106,79кв.м.
Състояние: Издава се съгласно БДС.
Сграда: Тухлено строителство.
Предимства: Разположен в динамично развиващ се район с удобна инфраструктура и близост до зелени площи, 'Зорница' предлага отлична комбинация между удобство, стил и спокойствие. Сградата разполага с асансьор. Възможност за закупуване на паркомясто.
Недостатъци: Няма.
Моля цитирайте реф. номер когато се обадите.
Ние ще Ви обърнем внимание и ще вникнем в детайлите на Вашето търсене заповядайте на среща с брокер в Нашият уютен офис. Комплимент за всеки закупен имот Нашите клиенти получават застраховка имущество за една година!
САМ ХОУМ е агенция създадена от брокери с над 15 годишен опит в сферата на недвижимите имоти, нашата цел е да Ви предоставим качествено обслужване, на което ние бихме се радвали, ако сме Ваши клиенти.







