Комплексът впечатлява с изчистена, модерна фасада, включваща декоративни елементи, които подчертават обемите на сградата. Конструкцията е монолитна, с качествена топлоизолация и здрави външни стени. Терасите са с плътни и ажурни парапети, топло и хидроизолирани според стандартите. В сградата е създадено зелено общодостъпно пространство покривна тераса, която осигурява уютна градска среда и повишава качеството на живот.
Основни предимства на комплекса:
- Отлична локация с лесен достъп до транспорт
- Функционални, просторни и светли жилища
- Луксозни общи части и сигурност с контролиран достъп
- Озеленена покривна градина за релакс и отдих
- Качествени материали: немски алуминиев профил с троен стъклопакет Schüco, керамични тухли Wienerberger и др.
Паркинг:
В сутерена има 38 паркоместа с автоматизирана система за достъп с дистанционно управление. На партера са 18 покрити и 7 открити места. Надземният паркинг разполага с 26 паркоместа, достъпни с двулентова рампа. Стълбищните ядра са защитени с пожарозащитни врати, а на всяко ниво са предвидени технически и складови помещения.
Жилищни етажи:
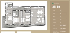
От третия до тринадесетия етаж са разположени 69 апартамента с разнообразна типология и площ. Достъпът е осигурен чрез два стълбищни клона и асансьори. На последния етаж има един многостаен апартамент с частна покривна тераса и панорамна гледка към града.
Това е възможност за комфортен и модерен стил на живот в сърцето на града, с всички удобства и сигурност, от които се нуждаете.
Строителен етап и срок за завършване:
Строителството на сградата е в напреднал етап разполагаме с Протокол 2 от края на Февруари и изграждането активно напредва. Срокът за изпълнение е 36 месеца, като завършването и издаването на Акт 16 се очаква през първата половина на 2028 г.
Апартаментите ще се предават по БДС - шпакловка и замазка.
Паркоместата в сградата стартират от 40 000 евро с вкл. ДДС, като цената варира спрямо вида (единично/двойно), квадратурата и разположението. Гаражи не се предлагат.
Стоп-депозит:
5000 лв. за апартамент
2000 лв. за паркомясто
Схема на плащане
20% Предварителен договор
30% Акт 14
30% Акт 15
20% Акт 16
Работим с различни схеми на плащане, включително 20-80, както и предлагаме възможност за преференциални условия при по-висока първоначална вноска.
Свържете се с нас за повече информация и оглед.
Виж всички обяви в sofiaproperty.bazar.bg или тук







