БИЛДИНГ БОКС има удоволствието да Ви представи четиристаен апартамент в бутикова кооперация с минимален процент общи части, на крачки от ул. 'Рая' в най-зелената и търсена част на града!
Възможност за преустройство в два двустайни апартамента или на един двустаен и един тристаен апартамент.
Предимства на имота:
- ЛОКАЦИЯ - Кв. Христо Смирненски, до парк 'Отдих и култура' и 'Гребна база'.
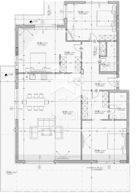
- РАЗПРЕДЕЛЕНИЕ: Огромна всекидневна с кухненски бокс с площ от 57,90 кв.м., родителска спалня с площ от 19 кв.м. с дрешник 7,90 кв.м. и баня 5 кв.м., втора спалня 19,50 кв.м., трета спалня 21 кв.м. с дрешник 6,70 кв.м., с излаз към тераса с площ от 8 кв.м., баня с тоалетна 7,60 кв.м., втора баня с тоалетна 4,20 кв.м., склад 1 кв.м. и антре 11,80 кв.м. Застроена площ - 237,56 кв.м.
- ЕТАЖ: 5-ти жилищен етаж от общо 5.
-ИЗЛОЖЕНИЕ: изток, юг, запад
- ОТОПЛЕНИЕ: Електричество - ниски разходи поради използваните качествени материали.
- ПАРКИРАНЕ: Големи паркоместа, които могат да се обособят в самостоятелни гаражи за 20 000 евро.
- ПРЕДИМСТВА НА СГРАДАТА:
1. Филтрация на водата кристално чиста питейна вода във всеки дом. Последно поколение система за филтриране на чистата вода, като се отделят тежките метали и твърди частици;
2. Фотоволтаична система оптимизира разходите за общите части'
3. Големи паркоместа, които могат да се обособят в самостоятелни гаражи;
4. Ще има перфектно зареден хранителен магазин за удобство на живущите в района
5. Модерна пететажна сграда, построена от подизпълнител с 25 годишен опит в строителстовото на собствени сгради;
6. Алуминиева от марка 'ЕТЕМ', многокамерна дограма с прекъснат термомост + стъклопакет 32мм 'Planistar Sun Plus' с двойно сребърно покритие;
7. Последно поколение стъкло;
8. Висококачествен обков с двуосово отваряне и комарници на всички отваряеми прозорци;
9. Външна топлоизолация по система на 'Ceresit';
10. Хидроизолация и топлоизолация на покрива над апартаментите със 'C- COAT', произведено от световните компании като '3М и AkzoNobel' Америка;
11. На всеки апартамент, граничещ над магазинната част и гаража, както и на асансьорните шахти, е поставена висококачествена шумоизолация.
12. ЕТАП НА СТРОИТЕЛСТВО: АКТ 15. Въвеждане в експлоатация (АКТ 16) се очаква м. Декември 2025г.
БИЛДИНГ БОКС предоставя безплатна консултация и съдействие при финансиране на избрания от Вас имот.
Оферта 5324







