Имоти Home Place Ви предлага пентхаус в района на Окръжна болница в град Варна.
Пентхаус! Уникален апартамент, разположен на целия последен етаж със самостоятелен достъп от асансьор.
Жилището е изградено в новострояща се сграда от доказал се на пазара строител и е на етап пред АКТ 15. Очаквано въвеждане в експлоатация - юли, август 2026
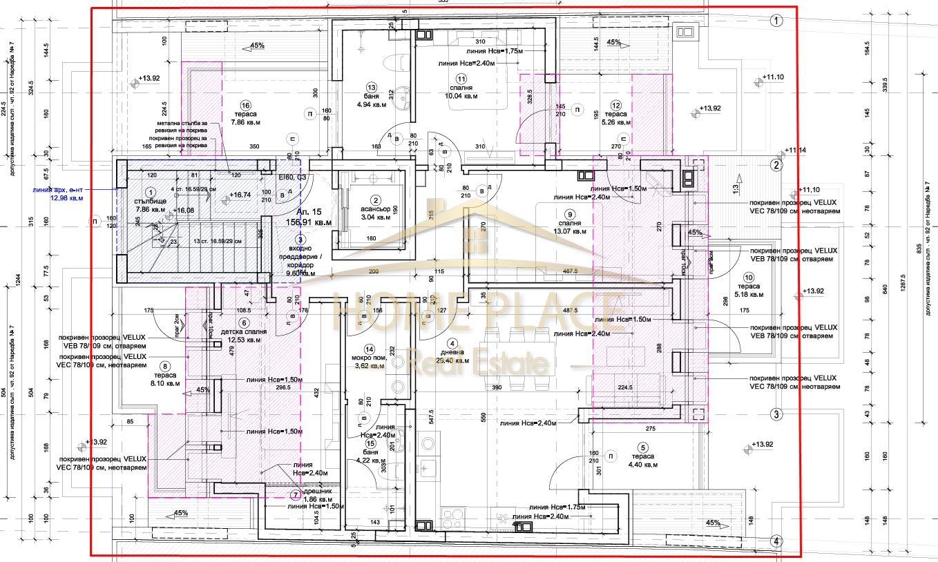
-Обща площ 184.19 м2
-Чиста площ 156.91 м2
За разпределението, моля разгледайте приложената схеми.
Възможност за покупка на паркомясто.
На Ваше разположение сме за всякаква информация и организиране на оглед:
Код на обява 29902
Home Place Ние работим за вас!







