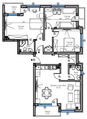
Оферта 68003: Представяме Ви Многостаен апартамент в новоизградена нискоетажна сграда, проектирана така, че да създаде максимален комфорт и уют в един от най- бързо развиващите се райони с лесен и удобен достъп и транспорт към центъра на Града. Сградата се намира на тихо и спокойно място в близост до всички необходими комуникации. Жилището се състои от южна дневна - 32.00 кв.м. с трапезария и кухненски бокс с излаз на тераса, три самостоятелни спални, като родителска спалня е с площ от 23.00 кв.м. с излаз на тераса и разполага със собствена баня с тоалетна, двете детски стаи са съответно с площ от 14.00 кв.м. и 13.00 кв.м., втора баня с тоалетна, широко входно антре с място за вграден гардероб и склад, подходящ за перално помещение. Обектът е построен от фирма с доказан опит, като разполагаме с готови сгради и можем да Ви покажем качеството на изпълнение, което се осъществява с висококачествени материали и съвременни технологии, по европейски стандарт, петкамерна PVC дограма, червена Австрийска Тухла, масивна Блиндирана входна врата с 4-странно заключване, сензорно осветление, хидравлични асансьори с огледална кабина. Свободни паркоместа в двора на цени от 13000 евро и Партерни Гаражи !!! Възможност за Закупуване чрез Банков Кредит или разсрочено изплащане по време на строителството !!! Възползвайте се от възможността да живеете в малка сграда на спокойно място !!!
ВИЖТЕ ОЩЕ ИЗГОДНИ ОФЕРТИ НА https://www.kondorimoti.com/ С ЕЖЕДНЕВНА АКТУАЛИЗАЦИЯ!







