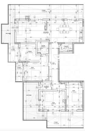
Този апартамент се намира на 6-ти етаж, последен етаж. Има реална площ от 281.42м2.
Апартаментът се състои от:
коридор,
хол и кухня,
3спални,
2 баня с тоалетна
перално помещение,
3 тераси.
Отоплението е с термопомпа.
Моля, попитайте за повече информация. Очакваме ви!
За повече информация и организиране на оглед, моля свържете се с нас на телефон: 0 700 15 15 1 и цитирайте код на офертата: 2-9792
Виж всички обяви в first_estates.bazar.bg или тук







