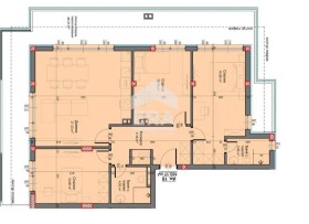
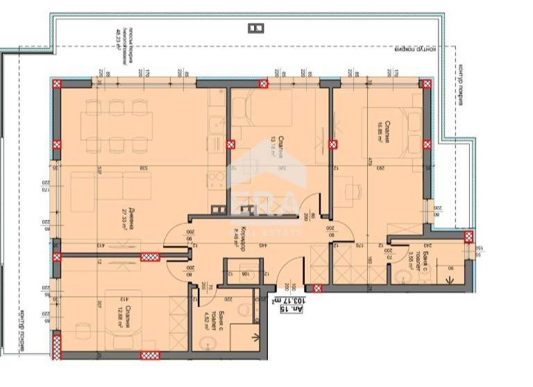
ERA Парадайс Ви предлага за продажба просторен и много светъл апартамент с три самостоятелни спални в новострояща се сграда в кв. Виница / Акт 15 /. Жилището е с обща площ 118.82 кв. м, от които 103.17 кв. м - застроена. Разпределението е изключително функционално и включва: просторна дневна с кухненски бокс и трапезария (27.33 кв. м), три просторни спални (съответно с площ от 16.85, 13.18 и 12.68 кв. м), две бани с тоалетни, една от които към родителска спалня, перално помещение /килер/ и голяма тераса (48.23 кв. м), заобикаляща целия апартамент, от която се открива страхотна панорама към града и гората. Площта на терасата не е включена в жилищната. Възможност за обединяване на дневния тракт с една от спалните за формиране на по-голям дневен тракт с площ от цели 40 кв.м! Жилището е с изложение юг, запад, изток. Към апартамента могат да бъдат закупени открити паркоместа във вътрешен двор, закрити в подземен паркинг или гараж.
Апартаментът е разположен на 4-ти етаж в жилищна сграда с асансьор. Локацията на сградата е едно уникално място, което съчетава съвременен дизайн с природната красота на квартал Виница в град Варна. Тя е създадена с мисъл за близостта с природата и предлага възможност за разходки и отдих на свеж въздух, благодарение на близостта с боровата гора. Със своите 3200 квадратни метра обща застроена площ, тя обещава да съчетае съвременен стил с природна красота. Около жилищната сграда ще бъде изграден богато озеленен двор с детски кът, алеи, пейки и беседка, които, в съчетание с боровата гора в съседство, осигуряват възможност за пълноценен отдих и разходки сред природата. При строителството са използвани висококачествени материали и дограма, които да гарантират комфорта и спокойствието на всички обитатели. Екстериорът на сградата придава изискан, елегантен и модерен завършек.
Местоположението на сградата е в близост до основна пътна артерия и различни удобства като хранителни магазини, заведения, търговски обекти, детски заведения и училища.
Сградата разполага с общо 44 паркоместа за автомобили. От тях 24 са разположени в двора на сградата, а останалите 20 - в подземния паркинг към сградата. Подземният паркинг е с контролиран достъп, което гарантира повече сигурност и спокойствие за всеки собственик.
Оферта 7100171







