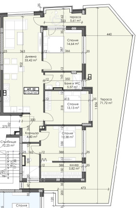
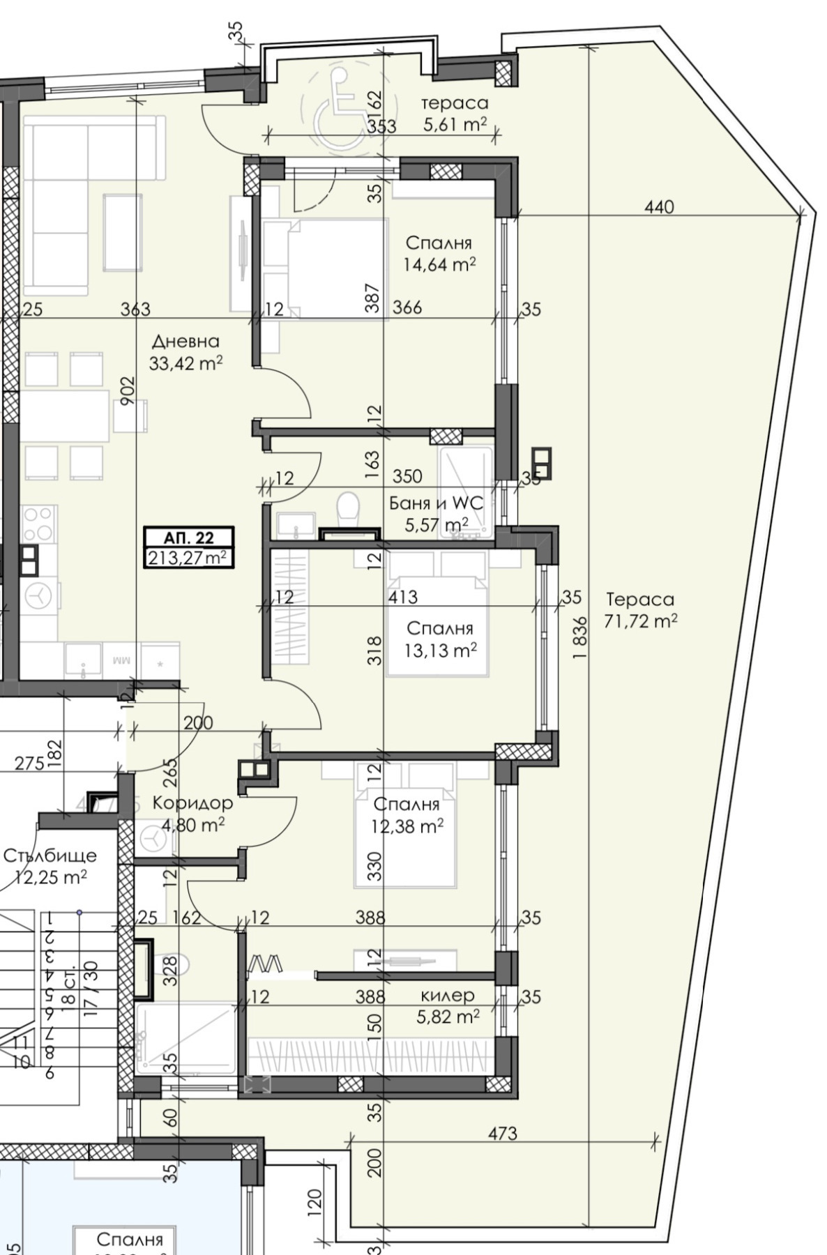
Предлагаме просторен апартамент с обща площ от 213 кв.м, разположен в най-новата сграда на Tolev Stroy Premium Properties отлична локация в сърцето на кв. Каменица 1.Пловдив
Разпределение:
* Светла дневна
* 3 просторни спални
* 2 големи бани/Wc (всяка една с прозорец, осигуряващ естествена светлина)
* Дрешник
* Тераса с панорамна гледка към центъра на любимият Пловдив.
Основни предимства:
* Височина на таваните 2.80 м
* Енергийно ефективна сграда клас А+
*Луксозни и просторни общи части
* Изложение изток / запад / север
* Партерни гаражи с права и обратна вода
* Опция за електростанции (зарядни за електромобили)
* Подземни паркоместа с топла връзка към сградата
*Алуминиева дограма( троен стъклопакет )
*Уникална по рода си клинкерна фасада
Имот без компромис с качество, локация и пространство.
Етап:
Акт 14.
Акт 16 до края на 2025г.
За повече информация и огледи:
[0988 714 314 / [email protected] ]
На www.tolevstroy.com може да разгледате наши завършени и актуални проекти.
Виж всички обяви в tolevstroy.bazar.bg или тук






