ЧИСТО НОВ ОГРОМЕН ЧЕТИРИСТАЕН АПАРТАМЕНТ В СЪРЦЕТО НА КРЪСТОВА ВАДА! НЕВЕРОЯТНИ ГЛЕДКИ! С АКТ 16 ОТ 2023г.!
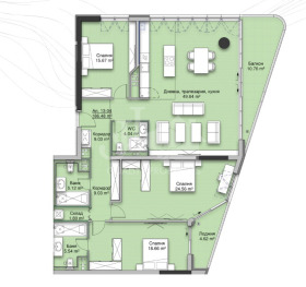
JJcorporation предлага на Вашето внимание много голям четиристаен имот, с чиста площ от 186,48 кв.м, разположен на етаж 13-ти, в модерна жилищна сграда с висококачествено строителство в кв. Кръстова вада. Това е един от най-предпочитаните и динамично развиващи се квартали на София с лесен достъп до центъра, метростанция, търговски центрове, супермаркети и зелени пространства. Районът съчетава спокойствието на жилищна среда с удобствата на модерния градски живот. Имотът впечатлява с обемите си, функционално и комфортно разпределение: входно антре, огромна дневна (50кв.м) с трапезария и кухненска част, три спални, три бани с тоалетни, мокрото помещение, две тераси с невероятни гледка към планината Витоша и София. Отоплението е решено с термопомпа - гаранция за икономичност, комфорт и устойчивост, а изложението е североизток.
Има възможност за покупка на подземни паркоместа (на -2 ниво) на допълнителна цена от 30 000 евро без ДДС.
В същата сграда предлагаме и други апартаменти!
Работим с колеги по всички наши оферти. Агенцията ни предлага пълно юридическо съдействие, както и преференциални условия за отпускане на ипотечен кредит.Удобно е да се обаждате по всяко време!Водещ брокер: Ирина Джанева 0887 219 224. Оферта номер: 405.







