Директно от инвеститор без комисионна от купувача!
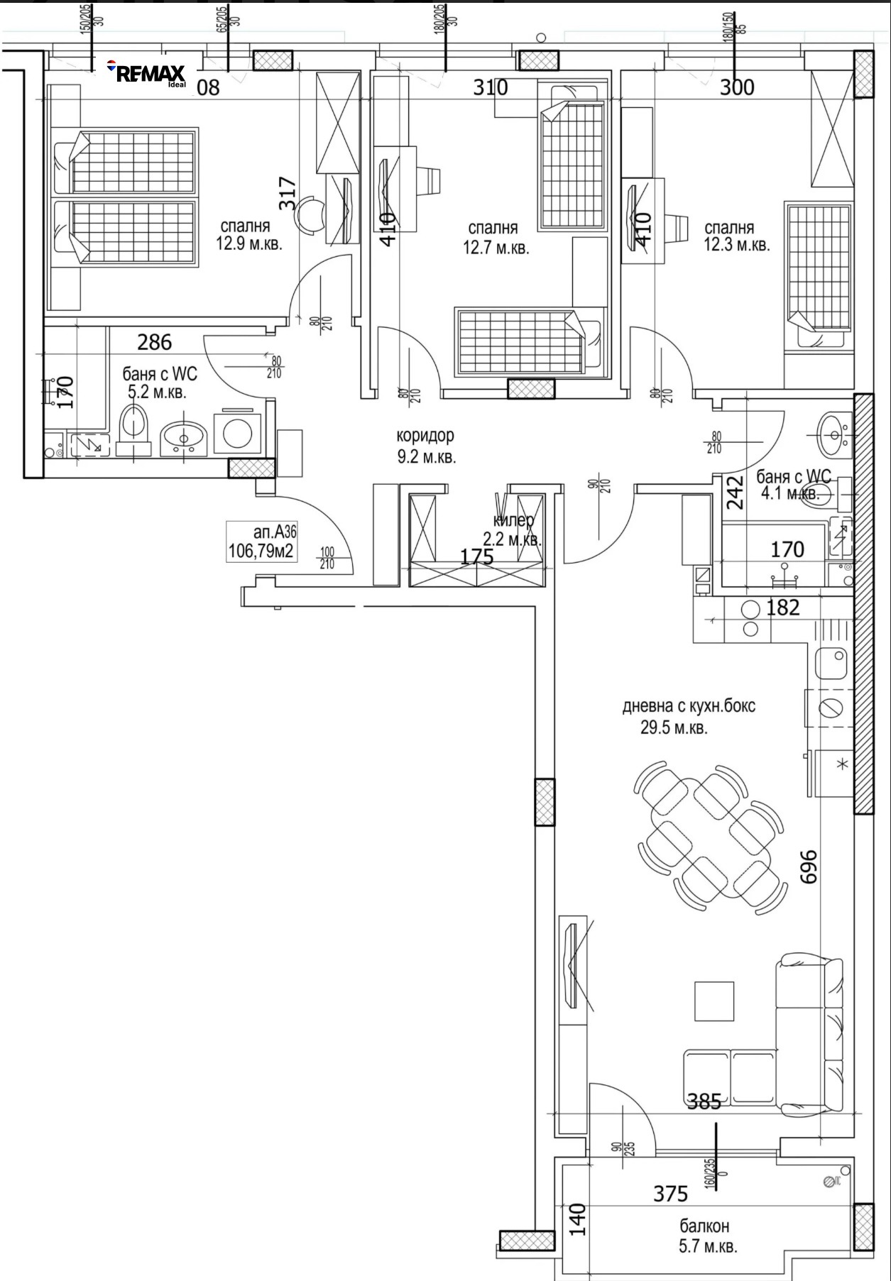
Предлагаме за продажба четиристаен апартамент в нова сграда (в строеж), разположен на девети етаж с функционално южно-северно изложение. Строителството стартира през октомври 2025 г., със срок за завършване до края на 2028 г. Проектът се реализира от утвърдена строителна компания с над 25 години опит и доказано високо качество на изпълнение. Предлагат се различни схеми на плащане 20/80, 30/70 и други, съобразени с индивидуалните възможности на клиента. Цените са фиксирани и не подлежат на промяна до приключване на строителството. Наличен е богат избор от двустайни, тристайни и четиристайни апартаменти, както и възможност за закупуване на паркоместа и търговски площи.
За повече информация:
[email protected]
+359884718691 (Viber / WhatsApp / Telegram)







