'Смени Адреса' представя НОВА СГРАДА с голям избор от апартаменти с една, две и три спални, търговски помещения, открити и закрити паркоместа на АТРАКТИВНИ ЦЕНИ!!!
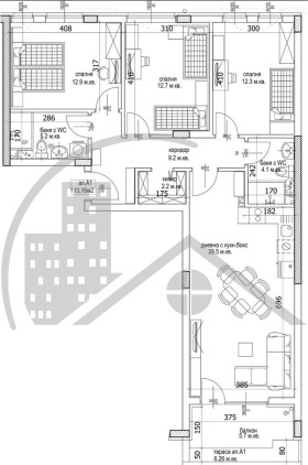
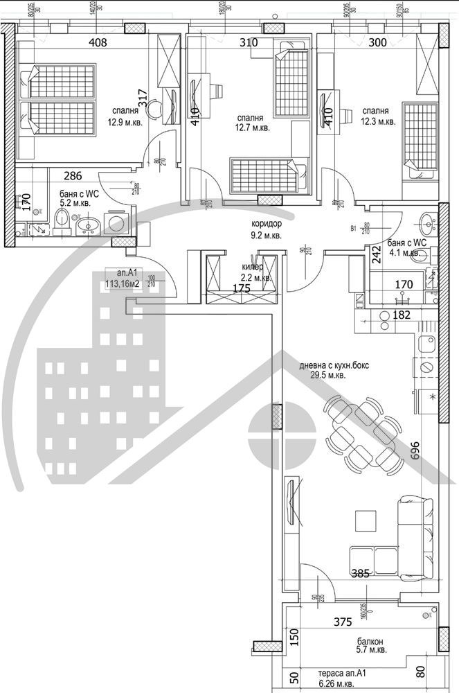
Голям, четиристаен апартамент разположен на ет. 2 от 9. Много слънчев ,топъл и просторен!
На площ от 133кв.м са разположени: дневна с кухненска част, три спални, две бани с тоалетни, килер, коридор и балкон! Степен на завършеност- БДС;
Удобни схеми на разплащане от утвърдена фирма на пазара с дългогодишен опит и изключително качествено изпълнение на строителството.
Сградата се намира в квартал с развита инфраструктура. В близост до училища, детски градини, магазини, спирки на градския транспорт и др.
Предвидени са :
Закрити паркоместа на цени от 16 500Е и
Открити паркоместа на цени от 14 300Е.
Старт на строителството- Октомври 2025 г.
Разрешение за ползване- Октомври 2028г.
Агенция СМЕНИ АДРЕСА предлага и други подобни имоти, с което улеснява избора Ви, съдейства за отпускане на кредити при най-добри условия, извършва обстойна юридическа проверка на имота и изготвя всички необходими документи за сделка.
За повече информация и огледи не се колебайте да се свържете с мен, като цитирате КОД: 11804
СМЕНИ АДРЕСА с нас, докато другите все още търсят!







