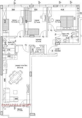
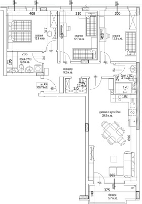
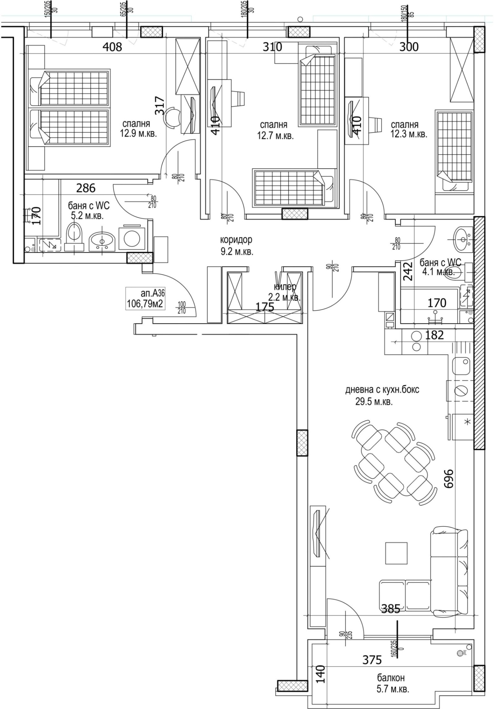
4-стаен апартамент 127 кв.м Директно от строител! Ново строителство, 3 спални, 2 бани, гъвкаво плащане
📍 Новоизграждаща се сграда | 9-ти от 9 етажа | Цена: 167 000 евро
Предлагаме ви просторен четиристаен апартамент, подходящ както за живеене, така и за инвестиция директно от строител, без комисионна!
🛏 Разпределение:
3 отделни спални
2 бани с тоалетна
Светъл и просторен хол с кухненски бокс
Дрешник
Голяма тераса
🏢 Сградата е в процес на изграждане с модерна визия и висококачествени материали. Апартаментът се намира на 9-ти етаж от общо 9, с асансьор и луксозни общи части.
💰 Гъвкава схема на плащане възможност за индивидуален план според вашите нужди.
📍 Локация с множество удобства на пешеходно разстояние:
Училища и детски градини
Супермаркети, аптеки, заведения
Градски транспорт
Паркове и зони за отдих
✅ Предимства:
Без комисионна директно от строителя
Просторно и функционално жилище
Възможност за завършване по ваш вкус
📞 Свържете се с нас за повече информация, оглед и архитектурни планове!







