ЕКСКЛУЗИВНИ ПРОДАЖБИ ДИРЕКТНО ОТ ИНВЕСТИТОР! НОВО СТРОИТЕЛСТВО!
ATRIUM RESIDENCE - стил, удобство и сигурност в едно! Нов проект в столичния квартал Овча Купел пред Разрешение за строеж! Предстои строителството на нова бутикова сграда с модерна визия на 50 метра от МЕТРОСТАНЦИЯ МИЗИЯ, НОВ БЪЛГАРСКИ УНИВЕРСИТЕТ, магазини, училище и парк Кукуряк. Локацията е перфектния избор както за семейства, така и за млади хора, които търсят баланс между динамичния градски живот и връзка с природата.
АТРИУМ РЕЗИДЪНС е достъпен жилищен проект, който комбинира уединение, удивителни гледки и пряк достъп до всички точки на града. Сдобивате се с перспективен имот с дългосрочно нарастване на стойността му.
Сградата разполага с 54 апартамента и предлага функционални разпределения, съобразени с нуждите на съвременното домакинство. Разнообразие от двустайни, тристайни и четиристайни апартаменти, и удивителни мезонети с 6-метра тавани. Отличава се с вентилируема фасада, френски прозорци, висок клас асансьори, луксозни общи части с естествени материали и нескриваеми гледки към Витоша - френските прозорци приветстват планината и тя сякаш става част от интериора.
Строителството се очаква да започне през ноември 2025 г., като финалният етап Акт 16 е предвиден през есента на 2027 г. Това дава достатъчно време за планиране на плащанията и гъвкаво разпределение на бюджета.
Предлагаме разнообразни схеми на плащане, така че да отговорят на всякакви финансови възможности. Инвеститорът от друга страна е отворен за преговори и гарантира доходност от вложените средства. Примерна схема, която осигурява контрол върху инвестицията, без необходимост от значително предварително финансиране:
- 30% при подписване на предварителен договор
- 50% на етап Акт 14
- 20% на Акт 16
Възможност за покупка на подземни гаражи.
Ако търсите отлично съотношение цена-качество-комуникативност, то ВАШИЯ НОВ ДОМ Е ТУК ПРИ НАС!
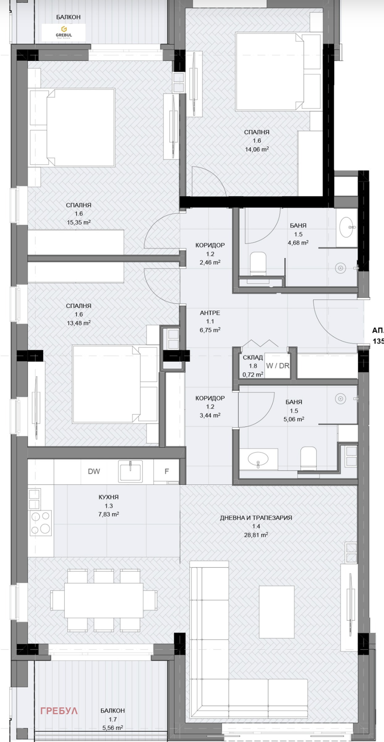
Четиристаен апартамент с площ 153.12 m², който предлага не просто квадратура, а истинско качество на живот.
Разпределение:
~ Антре: 6.75 m²
~ Коридори: 2.46 m²
~ Дневна и трапезария: 28.81 m²
~ Кухня: 7.83 m²
~ Първа спалня: 15.35 m²
~ Втора спалня: 14.06 m²
~ Трета спалня: 13.48 m²
~ Баня: 5.00 m²
~ Втора баня: 4.68 m²
~ Склад: 0.72 m²
~ Балкон: 5.56 m²
~ Втори балкон: 3.58 m²
Предимства на имота:
+ Изложение юг-запад-север с френски прозорци, осигуряващи гледки към Витоша и централните части на града, и гаранция за красиви залези
+ Просторна дневна зона с обособена кухня и трапезария 37 кв.м. за споделени моменти със семейство и приятели
+ Светли и тихи спални за пълноценна почивка
+ Балкон с кът за отдих и гледка към зеленината на комплекса
+ Правилните форми на помещенията са предпоставка за лесно интериорно оформление
Не купувате просто апартамент. Инвестирате в надежност, усещане за простор и лукс!
АТРИУМ РЕЗИДЪНС не е просто място за живеене, тук животът се преоткрива!
Строителят на страда ATRIUM RESIDENCE има богат опит с емблематични сгради в София като Teatralna Park Residence, FPI City Tower, Ирис Парк, Многофункционална сграда Изток Плаза и много други.
За въпроси и огледи свържете се с нас на тел: +359 87 7777 572 или заповядайте в офиса ни на бул. Витоша 32.







