Представяме Ви жилищна сграда разположена в кв. Възраждане 4, гр. Варна.
С елегантна визия и съвременна архитектура, обектът предлага идеалното съчетание между уют, функционалност и модерни удобства.
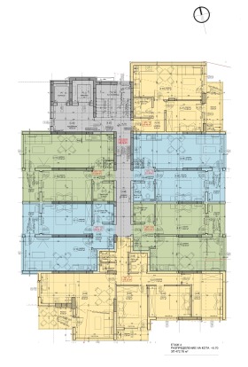
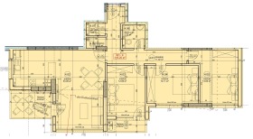
Сградата разполага с 13 етажа и включва разнообразие от двустайни, тристайни и четиристайни апартаменти, проектирани с просторни помещения, практични разпределения и оптимално естествено осветление. Всеки дом е създаден с внимание към детайла, за да осигури максимален комфорт и приятна среда за живот.
На разположение на живущите са две нива подземен паркинг, които гарантират удобен и сигурен достъп до автомобила по всяко време.
Това не е просто сграда това е Вашият бъдещ дом, създаден с мисъл за удобството и уюта на всяко семейство.







