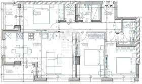
ЕРА Лайф обявява за продажба четиристаен апартамент с площ 120,51 м2 (застроена площ 102,57) м2, разположен на шести етаж от единадесет в новострояща се жилищна сграда. Имотът е със следното разпределение: дневна с кухненски бокс, 3 спални, 2 бани с тоалетна, килер, входно преддверие и 2 лоджии. Виж раздел 'План'.
Изложение: югозапад. Вид на завършеност на жилището: БДС стандарт, стени - мазилки, шпакловка и грунд, тавани - мазилка, шпакловка и грунд, входна врата с метален обков, пет камерна PVC дограма, марка 'ВИВАПЛАСТ', ел. инсталации - контакти и фасунги, ВиК на тапи.
Отопленето ще бъде с електричество. Схемата на плащане е: При предварителен договор: 30%,при достигане на кота 15.35 : 20%, при издаване на Акт 14: 20%, при поставяне на дограма: 10%, при издаване на Акт 15: 10%, при издаване на Акт 16: 10%.
Паркирането е свободно в района, като има възможност за закупуване на подземен гараж или открито паркомясто.
Обявеният за продажба апартамент е в сграда, която ще бъде въведена в експлоатация декември 2027г. Сградата е монолитна и е създадена с устойчиви на времето материали, които гарантират дългосрочна безопасност и ефективност при експлоатация.
Район с отлична инфраструктура - в близост до главни пътни артерии, автобусни спирки на градския транспорт, магазини, голям търговски център, професионални гимназии и училища, детски градини и ясли. Имотът е отличен както за живеене, така и за инвестиция. Код: 0708760
Оферта 0708760







