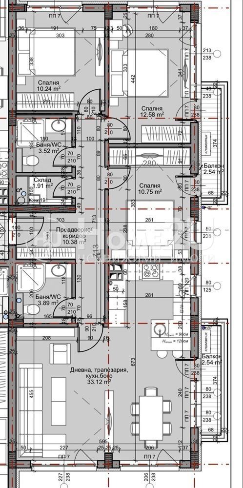
Хоум Ту Ю представя на Вашето внимание четиристаен апартамент в новострояща се жилищна сграда в кв. Младост 4. Материалите, които се използвани в строителния процес са от най-високо качество, отговарящи на всички стандарти и най-новите тенденции на пазара.Отоплението на сградата е на ГАЗ. Имота има следното разпределение, антре, дневна с кухненски бокс, три спални, две бани с WC, склад и две тераси, за Ваше улеснение прилагаме схема на разпределение!
Локацията, в която проекта е разположен, допринася с това да имате бърз достъп до Околовръстен път, Бизнес парк, Природен Парк Витоша, автобусни линии и метростанция.
Ако желаете да закупите имот в сградата, обадете се СЕГА и цитирайте следния код :134457
Виж всички обяви в home2um.bazar.bg или тук
        
       
         
         
         
         
         
         
         
         
         
             
             
             
             
             
             
             
             
            






