За повече информация обадете ни се на тел: 0882 817 470 или 052 813 703 и цитирайте референтния номер на имота: Vna 88107.
Отговорен брокер: Анна Ицова
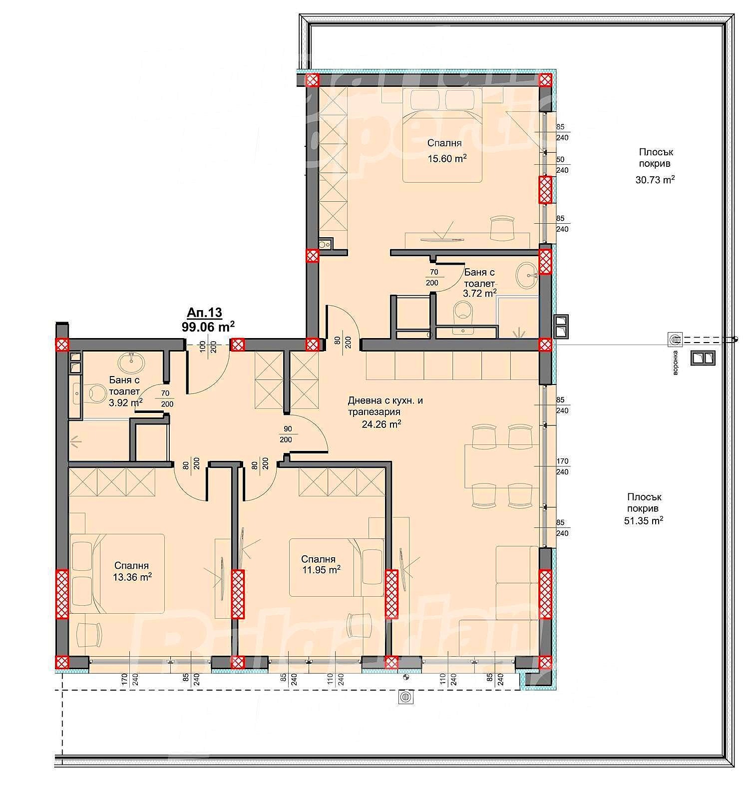
Предлагаме за продажба четиристаен апартамент по БДС, пред Акт 16 със спокойна и зелена локация до гора, детска градина, училище, хипермаркети, до автобусна спирка и други градски удобства в кв. Виница.
Апартаментът (обща площ 197.71 кв.м., чиста площ 99.06 кв.м.) се намира на четвърти етаж и се състои от:
3 спални
Дневна с кухненски бокс и трапезария
2 бани с тоалетни
2 килерa
Коридор
Покривна тераса 82.08 кв.м.
Апартаментът е проектиран с акцент върху функционалността и комфорта, което го прави идеален избор за всеки, който търси достатъчно пространство. Апартаментът разполага с гледка както към гората, така и към града, което създава приятна атмосфера. Източното и южното изложение позволява на естествената светлина да изпълва пространството през деня, допринасяйки за светла и привлекателна жилищна среда.
Цената на сайта е при план на плащане: 90% на предварителен договор и 10% на Акт 16. При план 60% - Предварителен договор/30% - Акт 15/10% - Акт 16 цената е 230 017 евро, а при 30% - Предварителен договор/60% - Акт 15/10% - Акт 16 - 251 055 евро.
Оглед на имота
Можем да организираме оглед на имота спрямо нашия график и възможностите за достъп до него. Заявете вашето желание за оглед, като се свържете с отговорния за офертата брокер по имейл или телефон.
Резервация на имота
Имотът може да бъде резервиран и свален от продажба със заплащане на депозит, след което се прекратява провеждането на огледи с други купувачи и започва подготовка на документите за сключване на предварителен и окончателен договор. Свържете се с отговорния брокер за подробна информация относно процедурата на покупка и начините за плащане.
Жилищен кредит
Ние си партнираме с водещите български банки и можем да ви свържем с техните консултанти за информация и кандидатстване за кредит.
...







