Unique Estates има удоволствието да представи просторен апартамент с три спални в новостроящ се бутиков комплекс, разположен в престижния квартал Бояна. Състоящ се от три изискани сгради на по четири етажа, комплексът впечатлява със съвременен архитектурен облик, прецизно планирани разпределения и луксозни общи части.
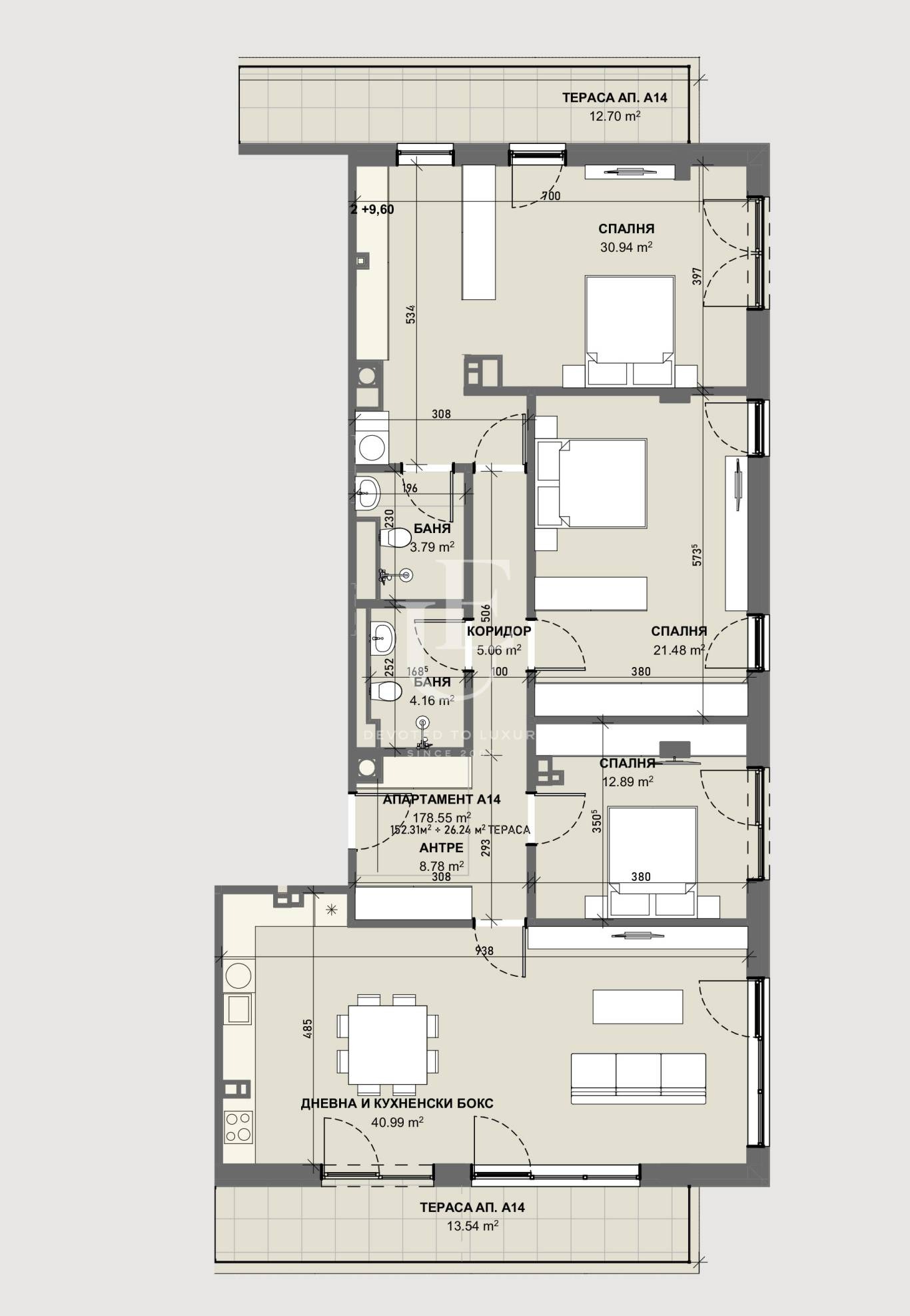
Апартаментът разполага с просторен южен хол с кухненски бокс (41 кв.м.), три спални (13 кв.м., 21 кв.м. и 31 кв.м. мастър), две бани и две тераси с панорамни гледки едната към Витоша, другата към града.
Отоплението е на газ с изградена система за подово отопление, както и подготвени изводи за климатици. Дограмата е алуминиева с троен стъклопакет, осигуряващ висока енергийна ефективност и комфорт.
Локацията съчетава уединение и тишина с бърз достъп до центъра на града. Жилищният район е сред най-предпочитаните заради чистия въздух, спокойната атмосфера и изключителните панорамни гледки към Витоша и София. В непосредствена близост се намират учебни заведения, банки, супермаркети и търговски обекти.
Комплексът е проектиран с мисъл за качество и хармония с природата. Той предлага подземни паркоместа, контролиран достъп и високо ниво на сигурност. Всеки детайл е проектиран да носи комфорт, естествена светлина и елегантност символи на устойчив и модерен начин на живот.
Сградата е на етап Акт 14
Входно антре, просторен южен хол с кухненски бокс (41 кв.м.), три спални (13 кв.м., 21 кв.м. и 31 кв.м. мастър с гардеробно помещение), две бани и две тераси с панорамни гледки едната към Витоша, другата към града. Цената е без включен ДДС. Ref. ID:27385







