'Явлена Изток' продава четиристаен апартамент с френски прозорци, изцяло южно изложение и директен излаз на двор.
Жилището се намира на тиха улица във в.з. Малинова Долина, като същевременно е на пешеходно разстояние от IKEA и Ring Mall, където има комуникации с градски транспорт и бърз излаз на Околовръстен път.
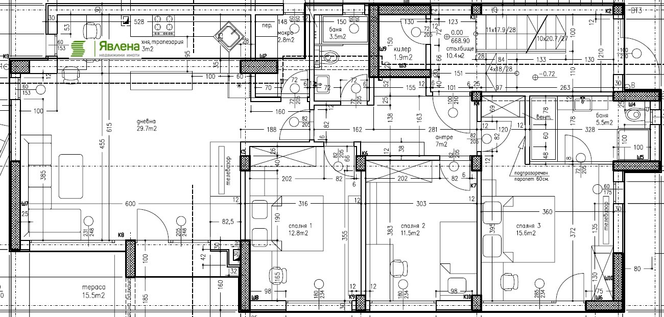
Имотът се намира в малка сграда, състояща се само от три жилища. Предимство е, че НЯМА такса поддръжка, а същевременно е с много малък % общи части, а именно: ЗП 133.27 кв.м. и 138кв.м. с общи части.
Разпределението е следното:
+ Дневна с кухненски бокс: 38кв.м.
+ Спалня 1: 12.8 кв.м.
+ Спалня 2: 11.5 кв.м.
+ Спалня 3: 15.6 кв.м. + баня към нея (5.5кв.м.)
+ Втора баня с тоалетна:
+ Мокро помещение:
+ Антре
+ Тераса 15.5 кв.м.
+ Бонус 1: в цената е 8.63 кв.м. мазе
+ Бонус 2: в цената е 33.71% идеални части земя
+ Бонус 3: има възможност за паркиране пред къщата и вътре в двора.
+ Има опция за покупка и на гараж, който е на отделна цена от 30к евро.
+ Има опция за покупка на допълнително помещение от 33 кв.м., разположено на полусутерен, което е подходящо за: Фитнес, сауна, офис, гостна, стая за родители или отделяне на по-голямо дете.
Отоплението е решено с термопомпа и подово отопление.
В момента жилището е отдадено под наем, затова моля имайте предвид, че огледи ще се правят само в конкретни дни в месеца, след предварителна уговорка.
За повече информация, моля да се обърнете към Георги Николов. (yavlenaCOM/161083).







