ДИРЕКТНО ОТ ИНВЕСТИТОР!
Агенция за недвижими имоти LATIRA ESTATE има удоволствието да Ви представи 4-стаен апартамент в кв. Дружба 1 със 100 кв.м тераси, в сграда с гледка към паркът и езерото!
Топ локация! Асфалтов път!
Директен достъп до парка!
До метростанция Искърско шосе
Трамвай
Автобусни спирки
Детски площадки
Строителство - тухла 2025 г.
На шпакловка и замазка
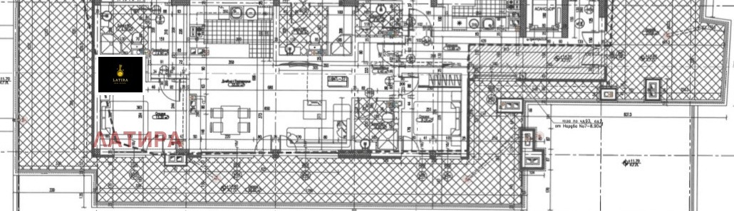
Площ на апартаментът 128.08 кв.м
Площ на терасата 98.35 кв.м
Етаж 6 от 6
Изложение: Запад/Север!
Мазе към апартамента 3.11 кв.м - 6 531 евро без ДДС
Възможност за закупуване на паркомясто в подземен паркинг:
- паркомясто - 27 640 евро без ДДС!
- външно паркомясто - 24 000 евро!
На пешеходно разстояние от метростанция, спирки на автобус, трамвай! Магазини, аптеки и ресторанти! В близост до детска градина и училище!
Изключителна възможност, както за живеене, така и за инвестиция!
- Акт 16 в м. Юни 2026 г!
Доказан инвеститор с високо качество на строителство! Разпределение:
- широко входно антре
- хол с трапезария и кухненски кът
- спалня 1
- спалня 2
- спалня 3
- 2 бани с тоалетни
- тераси
Агенцията предлага БЕЗПЛАТНО и ПРОФЕСИОНАЛНО съдействие, за своевременно осигуряване на ипотечни и/или потребителски кредити, при максимално изгодни условия за кредитополучателя.
Брокер: Анна Димитрова - 0884286777
Виж всички обяви в latira.bazar.bg или тук







