'Елиз дом' предлага на вашето внимание четиристаен панорамен мезонет в кв.Аспарухово.
Имотът предлага усещане за простор и уединение, както и прекрасна панорама към морето и града.
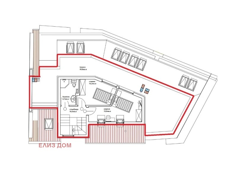
Ниво 1: дневен тракт, спалня, баня с тоалет, перално, коридор и две тераси;
Ниво 2: две спални, баня с тоалет, коридор и тераса.
Към имота има прилежащо складово помещение, разположено на партерно ниво.
Възможност за закупуване на подземно паркомясто или гараж.
Сградата е въведена в експлоатация през 2025г.
Още предложения от 'ЕЛИЗ ДОМ' можете да разгледате на www.eliz-dom.com







